
2870 SILVER SCALLOP DR
5, 2, 2,389ft²
MLS#: TB8376002
Welcome to your beautiful home in the highly desirable Vista Palms Community of Wimauma!
Offers 1% lender credit at closing. This stunning 4-bedroom, 3.5-bath residence offers 3,122 sq. ft. of thoughtfully designed living space and the perfect blend of comfort, style, and resort-style living. Built in 2015, with a brand-new roof scheduled to be installed before closing.
Step inside to discover an open-concept layout featuring a bright and inviting living area, a modern kitchen with ample counter space, and spacious bedrooms designed for both relaxation and privacy. The home does need new carpet and a fresh coat of paint—but once those updates are completed, it will truly shine and make a wonderful home.
Step outside to your private backyard oasis—ideal for morning coffee, weekend barbecues, or entertaining family and friends.
Enjoy all the community amenities, including a clubhouse, sparkling pool with splash area, relaxing hot tub, fitness center, pickleball courts, and a shaded playground—perfect for an active and social lifestyle.
Ideally located between Sarasota and Tampa Bay, this home offers convenient access to top-rated schools, shopping, dining, entertainment, and major highways.
Priced at $375,000 to reflect the updates needed—this is an excellent opportunity to own a spacious home in Vista Palms with incredible potential.
Don’t miss your chance to make this exceptional home yours today!
Driving directions : East on Sun City Blvd. from I-75. Turn south on US-301. Vista Palms is located half mile south on left.
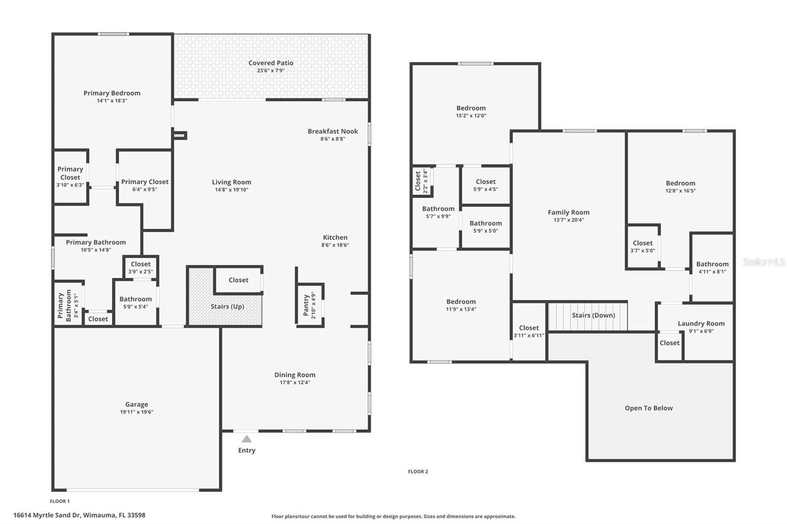
Rooms | Dimension | Description |
---|---|---|
Bedroom 2 | 13x12 | Second level |
Bedroom 3 | 15x12 | Second level |
Bedroom 4 | 11x13 | Second level |
Bonus Room | 13x21 | Second level |
Dining Room | 12x13 | First level |
Kitchen | 9x15 | First level , Pantry |
Living Room | 14x20 | First level |
Primary Bathroom | First level , Double Vanity , Garden Bath , Tub with Separate Shower Stall | |
Primary Bedroom | 14x14 | First level |
Dinette | 9x8 | First level |
5, 2, 2,389ft²
MLS#: TB8376002
4, 2, 2,038ft²
MLS#: TB8432810
4, 2, 1,914ft²
MLS#: TB8418583
5, 3, 2,601ft²
MLS#: TB8414790