
2342 8TH AVE N
3, 2, 1,296ft²
MLS#: TB8408337
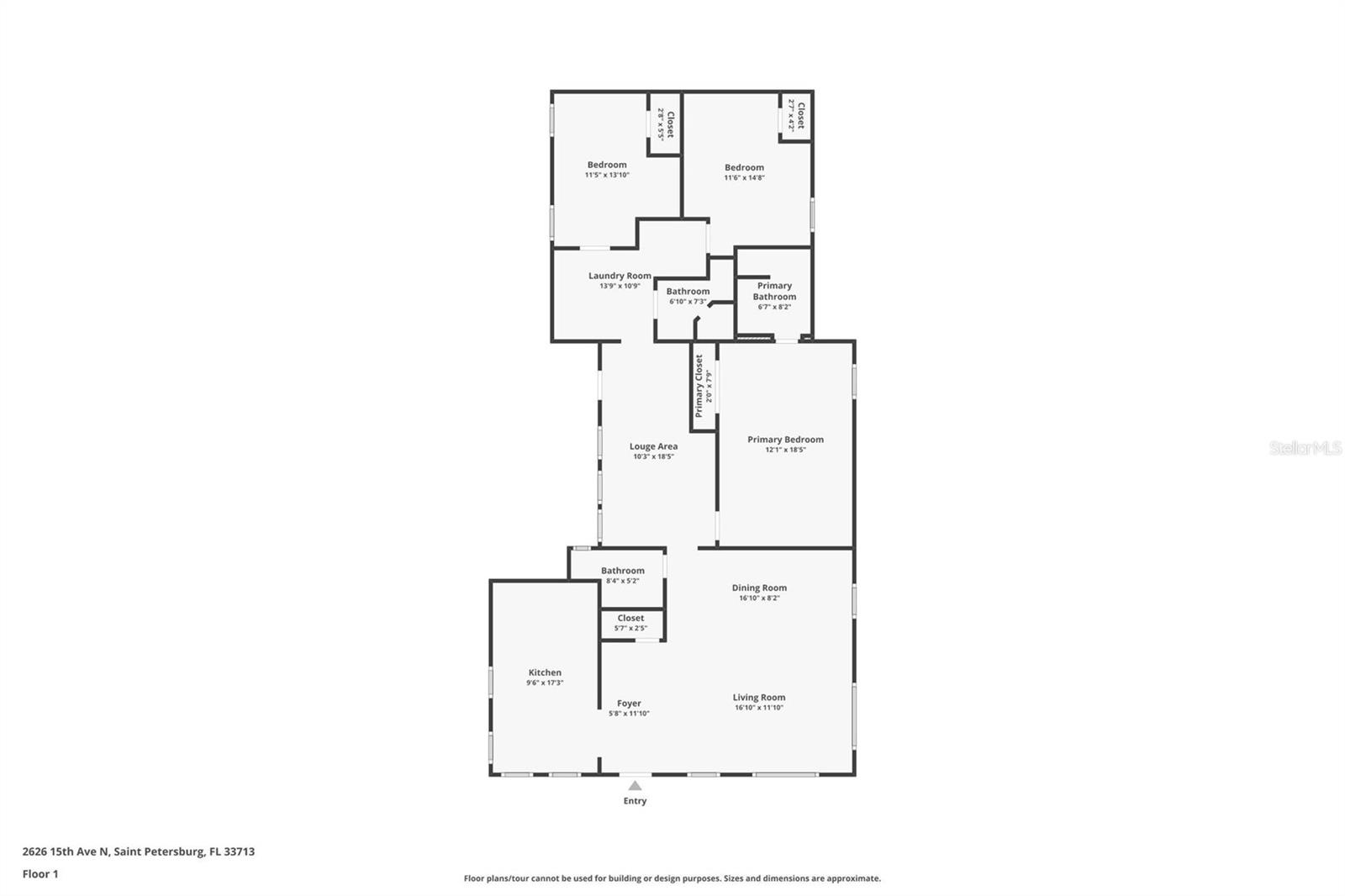
Charm and curb appeal abound for this Saint Petersburg home! Step inside the inviting foyer and into the kitchen, which boasts a 4-piece appliances package, hard surface countertops, and ample storage. Through the well-appointed living/dining room you'll find a secondary seating area, positioned at the center of the home. This ranch style floorplan is rounded out by the primary suite and two secondary bedrooms. Come and see for yourself the possibilities that this home has to offer!
Driving directions : Going south on US Hwy 19 S, turn left on 22nd Avd. N., right on 28th St. N., left on 15th Ave. N. to address.
Rooms | Dimension | Description |
---|---|---|
Foyer | 5x11 | First level |
Living Room | 16x11 | First level |
Dining Room | 16x8 | First level |
Kitchen | 9x17 | First level |
Primary Bedroom | 12x18 | First level |
Bedroom 2 | 11x14 | First level |
Bedroom 3 | 11x13 | First level |
Laundry | 13x10 | First level |
3, 2, 1,296ft²
MLS#: TB8408337
2, 2, 1,495ft²
MLS#: TB8436765
3, 2, 1,380ft²
MLS#: TB8424659
3, 2, 1,487ft²
MLS#: TB8424149