English / Українська / Русский

Julia Vakulenko - Broker -

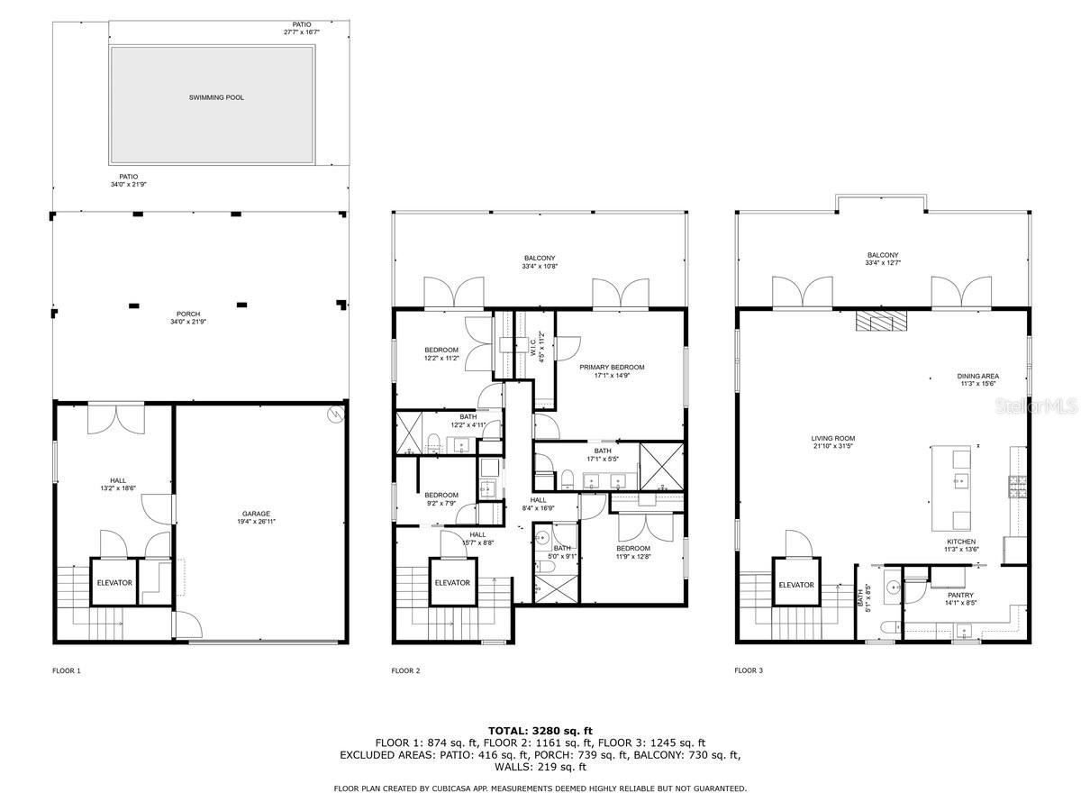
Front View of the Property Pass-A-Grille Channel leads directly to the Gulf Looking East From Property, the Unobstructed View! Sunset, colors surround the peninsula, from the West to the East 3rd Floor Open Concept Living / Dining / Kitchen / Looking East at the unobstructed Water Views 3rd Floor: Living Room Towards the Kitchen / Dining, and the Views! 3rd Floor: Another Look at the Living Area towards French Doors to oversized Patio and unobstructed Water Views. 3rd Floor: Reading Nook 3rd Floor: View of Kitchen Island to the living and dining areas 3rd Floor:  Dining and Chef's Kitchen Areas 3rd Floor:  Chef's Kitchen Area / Island 3rd Floor:  Island facing Chef's Kitchen Custom Cabinetry Dining Area / Chandelier / Water Views 3rd Floor: Granite Island / Designer Finishes 3rd Floor:  La Cornue Gas Luxury Range, Custom Cabinets and Hardware, Perfectly Placed 1of 2 Refrigerators 3rd Floor: High End Chef's Kitchen: La Cornue Gas Range, Designer Tiled Backsplash, "Pantry" Entrance next to Fridge, Pocket Door Versatility 3rd Floor: Your Dream 'Pantry': Feels like a Second kitchen with 2nd: sink, fridge, dishwasher, counter space: (1920's style hutch conveys) 3rd Floor:  Chef's Dream: 'Pantry" looking View from the Entrance (pocket door for privacy from Main Kitchen) 3rd Floor Patio. Views of Pass-A-Grille Channel looking South 3rd Floor Bathroom.  West Facing 3rd Floor: Stairs down to 2nd Floor.  Elevator door to the Right. 3rd Floor Elevator Ready to descend to 2nd Floor  (Bedrooms and Bathrooms Level) 2nd Floor:  Primary Bedroom French Doors to Patio, sweeping water views 2nd Floor: Primary Bedroom, King Size Bed, Plantation Shutters, Ceiling Fan, French Doors to Patio 2nd Floor: Primary Bedroom. En Suite Bathroom entrance to the right. 2nd Floor: En Suite Bathroom, Dual Vanity, Marble Finishes 2nd Floor: En Suite Bathroom. Marble Flooring, Walk-in Oversized Shower, Dual Vanity 2nd Floor:   Second Floor Patio, Enter From Primary Bedroom, Porcelain Tile Floor 2nd Floor:  Second Floor Patio, Hinkley Pineapple lighting, Porch Swing with cushions, decorative pillows, and a unique tiled table with chairs pictured in forefront 2nd Floor:  Second Bedroom, French Doors with Plantation Shutters lead to Patio. 2nd Floor:  Second Bedroom's En Suite Bath. Marble Tile, Pedestal Sink, Linen Closet 2nd Floor:  Third Bedroom, Ceiling Fan, Split A/C unit for zoned control, plantation shutters 2nd Floor:  Fourth Bedroom, Closet, Adult Sized Bunk Beds, Custom Ladder repurposed from a boat another one of many unique features. 2nd Floor: Second Floor Hallway Bathroom 2nd Floor: Stairway and Elevator 2nd Floor: Stairway to first floor (Foyer entrance to home) 1st Floor: Foyer View from the front door entrance. Garage Entrance to the left, Elevator entrance and Storage Closet direct view, stairs from 2nd floor. 1st Floor: Front Entrance,  Foyer view, Elevator Entrance Garage: Hurricane door, ample storage, 2 car garage, entrance in rear from the alley. 1st Floor:  Foyer, Hurricane rated Front Double Doors, Leads to Covered Patio and pool area. 1st Floor: Closer look at the Front Entrance Entrance: Outdoor, Front Entrance Patio Level. Private Pool, Covered Patio, lush landscape Swim Shelf refreshing Salt Water Pool, resort feel Your own private oasis One of the many walk over paths to the beach Award Winning Pass-A-Grille Beach, steps away, no parking pass needed! TB8420808 Pass-A-Grille Beach looking South, the Hurricane Restaurant and Paradise Grille visible. Enjoy The Location, minutes to shops, the beach, the pier, fishing docks, dog beach, restuarants Just another lovely day at the beach St Pete Beach Yacht Club a few blocks away, north Only 5 short blocks to Hurley Park: No membership needed for: pickle ball, tennis, dog park, and baseball field Floor Plan. All Floors 1st Floor / Ground Floor -  Floor Plan 2nd Floor. Floor Plan 3rd Floor.  Floor Plan
Loading map ...
Loading map ...

1002 PASS A GRILLE WAY, ST PETE BEACH, 33706

  • $3,950,000
  • 4 Beds, 3 Baths (and 1 half-baths) , 2,964 Sq.Ft
  • County: Pinellas
  • Subdivision: MOREY BEACH


Property highlights

  • MLS#: TB8420808
  • 4,299.00 lot size Sq.Ft.
  • Year built: 2022
  • Parking spaces: 2
  • Pool: Private pool
  • Waterfront:

Property Overview

Welcome Home!
WHY WAIT Years To Design, Permit, and Build When You Can Step Right Into
Water View Perfection?

1002 Pass A Grille Way sits in the most coveted stretch of St Pete Beach:
Pass-A-Grille. Dreamers wish upon the stars for this home’s location. A
community where neighbors still gather on 8th Ave, stroll to curated shops,
and share cocktails at local favorites just blocks away.(Be sure to check out the virtual tour video of the property)

This 2022 raised beauty has it all—4 bedrooms, 3.5 baths, an elevator, and
nearly 3,000 sq. ft. of living space (over 5,000 including patios).

Toes in the sand, a dip in the Gulf—your day has begun! In less than five
minutes you’re back at your private outdoor shower, rinsing off, and
heading upstairs to the 3rd floor where the magic happens. This is the
heart of the home and the lifestyle that you’ve been craving!

The wide-open living space leads to French doors showcasing a front row
view of daily waterfront theater: dolphins at play, sailboats drifting by,
rainbows arching across the bay, and sunsets that glow long after the last
sip of your cocktail. Your 'bay' view surpasses just an intracoastal look, this expansive view of the Pass-A-Grille Channel is at the mouth of the Boca Ciega Bay connecting it to the Gulf of Mexico. Anchored by a custom marble gas fireplace, the great
room spills into a chef’s kitchen that absolutely steals the spotlight—hello
French La Cornue gas range, custom cabinetry, sleek granite
island, and a show-stopping Portuguese tile backsplash.

Through an arched entry, the “secret second kitchen” (yes, oversized
pantry but so much more) gives you a second fridge, second dishwasher,
another sink, granite counters, and gadget-ready shelving. Dinner parties,
cookie marathons, cocktail prep—this space makes you look like a hosting
pro.

Downstairs, the primary suite is a retreat you’ll never want to leave - French
doors open to a private balcony overlooking the pool, custom closets,
ensuite bathroom with dual vanities, and oversized shower (big enough for
you, your chaise lounge and your daydreams). This floor also offers three
additional bedrooms each with their own personality, custom finishes, and
storage galore. Two additional bathrooms are on this floor (one of them
ensuite), and a conveniently located laundry room to keep life effortless.

Stairs or elevator down to the garden level, step outside, and the vacation
vibe is real! A sparkling pool with a sun shelf, new pool equipment and
lush landscaping on irrigation—all wrapped in fresh vinyl fencing— it’s your
own tropical hideaway.

The details that make it worry-free?
A two-car hurricane rated garage door,
hurricane-impact windows and doors,
modern day building materials, specific designer tile and lighting,
a whole-house water filtration system, and a
Generac gas generator that keeps the party (and
the AC) going even if the power does not.

This home is more than move-in ready—
it’s an invitation to step into the waterfront lifestyle right now.

Bring the champagne.
You Are Home...

Driving directions : Pinellas Bayway west and turn left at the Don CeSar (Pass A Grille Way), Continue Forward at the 4-way stop to the address, property on your left, parking on the street is available.

Property Features

Rooms Dimension Description
Kitchen 25x21 Third level , Luxury Vinyl , Walk-In Pantry
Dining Room 11x15 Third level , Luxury Vinyl
Living Room 21x31 Third level , Luxury Vinyl , Ceiling Fan(s)
Primary Bedroom 17x15 Second level , Luxury Vinyl , Ceiling Fan(s) , En Suite Bathroom
Primary Bathroom Second level , Marble , Double Vanity , Shower No Tub
Balcony/Porch/Lanai 33.4x12.7 Third level , Porcelain Tile

Interior Features

  • Attic Ventilator
  • Built-in Features
  • Ceiling Fans(s)
  • Eat-in Kitchen
  • Elevator
  • Kitchen/Family Room Combo
  • Living Room/Dining Room Combo
  • Open Floorplan
  • Solid Surface Counters
  • Solid Wood Cabinets
  • Stone Counters
  • Thermostat
  • Walk-In Closet(s)

Appliances

  • Cooktop
  • Dishwasher
  • Disposal
  • Dryer
  • Gas Water Heater
  • Microwave
  • Range
  • Range Hood
  • Refrigerator
  • Tankless Water Heater
  • Washer
  • Water Filtration System

Heating

  • Central
  • Natural Gas
  • Zoned

Laundry features

  • Corridor Access
  • Gas Dryer Hookup
  • Inside
  • Laundry Closet
  • Washer Hookup

Air Conditioning

  • Central Air
  • Ductless
  • Zoned
  • Attic Fan

Fireplace

  • Gas
  • Living Room
  • Stone

Floor Covering

  • Luxury Vinyl
  • Marble
  • Tile

Utilities

  • Cable Connected
  • Electricity Connected
  • Natural Gas Connected
  • Sewer Connected
  • Sprinkler Recycled
  • Water Connected

Exterior features

  • Balcony
  • French Doors
  • Lighting
  • Outdoor Shower
  • Private Mailbox
  • Rain Gutters
  • Sidewalk

Pool features

  • Gunite
  • In Ground
  • Lighting
  • Pool Sweep
  • Salt Water

Parking features

  • Alley Access
  • Covered
  • Driveway
  • Garage Door Opener
  • Garage Faces Rear
  • Golf Cart Parking
  • Ground Level
  • Off Street
  • On Street
  • Basement

View

  • Pool
  • Water

Patio and porch features

  • Covered
  • Deck
  • Front Porch
  • Patio
  • Porch

Architectural Style

  • Elevated

Community Features

  • Dog Park
  • Golf Carts OK
  • Irrigation-Reclaimed Water
  • Park
  • Restaurant
  • Sidewalks
  • Tennis Court(s)
  • Street Lights

Security Features

  • Fire Alarm
  • Smoke Detector(s)

Construction Materials

  • HardiPlank Type

Water access details

  • Fishing Pier

Road Surface Type

  • Paved

Property Condition

  • Completed

Roof

  • Shingle

Foundation

  • Pillar/Post/Pier

Vegetation

  • Trees/Landscaped

Lot Features

  • Flood Insurance Required
  • FloodZone
  • Historic District
  • Landscaped
  • Near Marina
  • Sidewalk
  • Paved

School Information


Listing information courtesy of COMPASS FLORIDA LLC

All listing information is deemed reliable but not guaranteed and should be independently verified through personal inspection by appropriate professionals. Listings displayed on this website may be subject to prior sale or removal from sale; availability of any listing should always be independently verified.
Listing information is provided for consumer personal, non-commercial use, solely to identify potential properties for potential purchase; all other use is strictly prohibited and may violate relevant federal and state law.
Listing data comes from My Florida Regional MLS.