
10355 PARADISE BLVD #1003
2, 2, 1,065ft²
MLS#: TB8389905
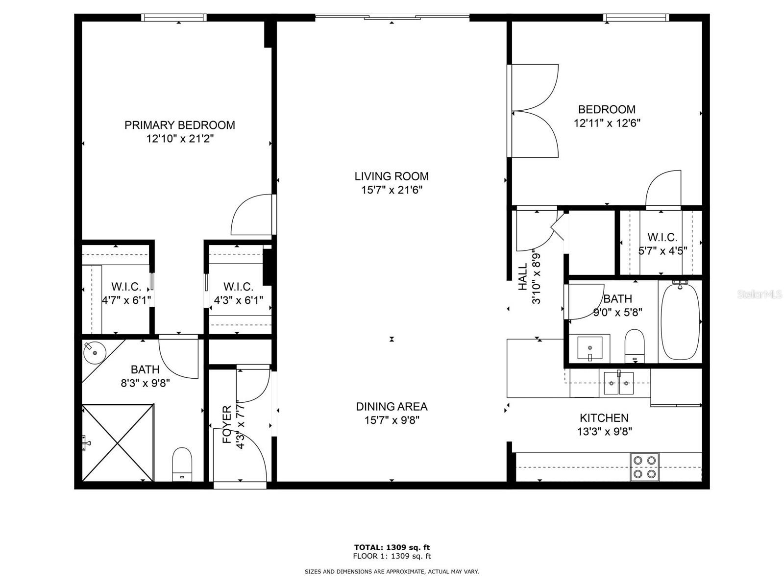
In the heart of St. Pete Beach, the Sunset Capital of Florida, you will find this rarely available ground-floor, waterfront condo located in the meticulous community of Three Palms Pointe condos, welcoming all ages. Providing an extra sense of security, Three Palms is a 24/7, gated property with a security guard. The community has an abundance of niceties with a clubhouse that has a sauna, fitness room, library, game room, community room, and kitchen; a heated pool, shuffleboard courts, boat docks, fishing dock, kayak storage and launch, and bike storage. As you arrive and pull into your designated, covered parking spot, be sure to take notice that not only is your spot close to the front door, but you are also completely covered from car to front door! As you step into this unparalleled, 2-bed, 2-bath unit, you are welcomed by your open concept living space and expansive water views that provide plentiful natural light. From the comfort of your living room, this South-facing condo overlooks the Intracoastal Waterway and Three Palms Pointe’s private boat docks. Just off your living room is your covered and fenced-in patio, perfect for sunsets, cocktail hours, relaxing, or reading; complete with a gate that provides convenient access to the lawn and community swimming pool. Back inside, the 1,365 sq/ft, split floor plan provides ample space and privacy for both the primary and guest bedrooms. On one side, the oversized en-suite primary features two large walk-in closets, peaceful water views, and a stunning Roman shower with both rain and wall shower heads. On the opposite side of the unit is your spacious guest room that also features water views, has a walk-in closet, French doors to the living room, and additional hallway access to the guest bath with a walk-in, jet tub. Just at the end of the hall is the one-of-a-kind breakfast bar and a brand-new (2025) open kitchen that boasts granite countertops, white Shaker cabinets, and all stainless appliances. Beyond the amenities, this home features impact-resistant windows and all-new doors, a new HVAC system and water heater (2024), and ceramic tile throughout. It also comes completely furnished for a turnkey purchase. Just a few blocks from the beautiful Gulf beaches, the historic Corey Avenue district of shopping, fine dining, restaurants, and bars, this condo is the ideal oasis for someone who enjoys the perfect mix of coastal and luxury.
Driving directions : From Gulf Blvd, go east on 64th Ave, through intersection to Three Palms Point on right. Present business card to gate guard and park in visitor parking. Enter at building #400 West.
Rooms | Dimension | Description |
---|---|---|
Living Room | 16x21 | First level , Ceramic Tile , Ceiling Fan(s) |
Dining Room | 16x10 | First level , Ceramic Tile , Breakfast Bar |
Kitchen | 13x10 | First level , Ceramic Tile , Ceiling Fan(s) , Granite Counters |
Primary Bedroom | 13x21 | First level , Ceramic Tile , Ceiling Fan(s) , En Suite Bathroom |
Primary Bathroom | 8x10 | First level , Ceramic Tile , Multiple Shower Heads , Rain Shower Head , Shower No Tub |
Bedroom 1 | 13x12 | First level , Ceramic Tile , Ceiling Fan(s) |
Bathroom 1 | 6x4 | First level , Ceramic Tile , Walk-In Tub |
2, 2, 1,065ft²
MLS#: TB8389905
2, 2, 1,425ft²
MLS#: TB8368088
2, 2, 1,175ft²
MLS#: TB8432178
0, 1, 365ft²
MLS#: TB8396256