
4224 PRINCE PL #4224
2, 2, 888ft²
MLS#: W7879390
Gardens Beacon Square is a quiet 55+ condominium community offering simplicity and convenience in this terrific New Port Richey location close to Florida’s compelling beaches, boating, golf courses, shopping and attractions. With your preferred updates, the functional layout of this one-bedroom, one-bathroom home is perfect for easy maintenance and comfort. A broad range of services are included in the monthly association dues including cable, internet, water, sewer and trash as well as exterior building and yard maintenance. We are happy to share more details and perspectives regarding this supremely cost effective way of life.
Driving directions : From the intersection of U.S. Hwy 19 and Glissade D, drive west 0.2 miles to Terrapin Pl and turn right. The unit will be on your right. Parking is open.
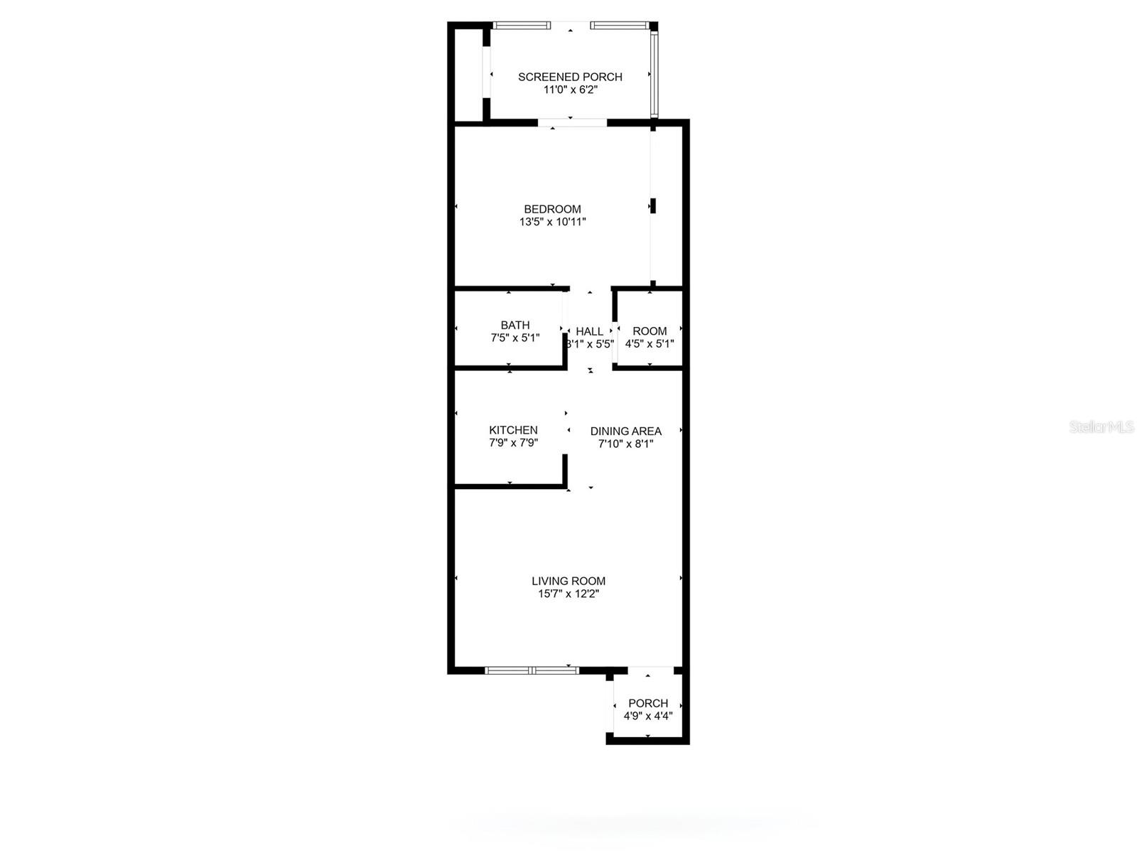
Rooms | Dimension | Description |
---|---|---|
Living Room | 15x12 | First level , Ceramic Tile , Ceiling Fan(s) |
Kitchen | 8x8 | First level , Ceramic Tile , Double Vanity |
Primary Bedroom | 7x5 | First level , Linoleum , Tub With Shower |
Bedroom 1 | 13x11 | First level , Concrete , Ceiling Fan(s) |
Dining Room | 8x8 | First level , Concrete |
2, 2, 888ft²
MLS#: W7879390
1, 1, 672ft²
MLS#: TB8425106
1, 1, 624ft²
MLS#: W7874172
2, 1, 831ft²
MLS#: TB8368303