
6210 92ND PL N #3404
2, 2, 1,245ft²
MLS#: TB8432534
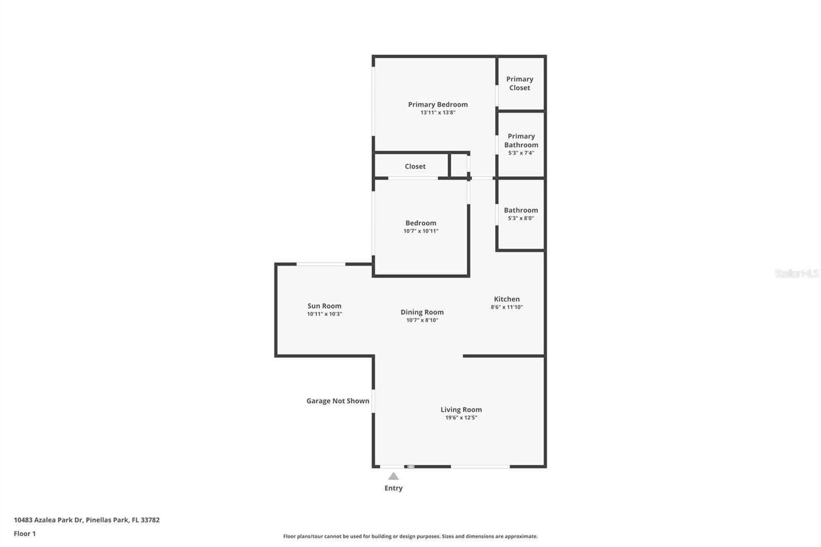
One or more photo(s) has been virtually staged. Welcome to 10483 Azalea Park Drive, a 2-bedroom, 2-bath condo in the desirable 55+ community of Springwood II in Pinellas Park. Offering 1,085 square feet, this home features two spacious bedrooms, a walk-in closet in the primary suite, and two full bathrooms. The floor plan includes both a welcoming front courtyard entry and a private courtyard off the living room, creating multiple spaces to enjoy the Florida lifestyle. A pond view enhances the setting, adding a peaceful backdrop. While the interior is ready for a full renovation, it provides the perfect blank canvas for an investor or snowbird to transform.
Springwood II residents enjoy a vibrant community atmosphere with a clubhouse, swimming pool, shuffleboard, fitness center, card and pool tables, and gazebos for gathering. Located just minutes from shopping, dining, major roadways, and a short drive to Florida’s award-winning Gulf beaches, this property offers both convenience and potential. Whether you’re looking for your next project or a seasonal retreat, this condo is ready for your vision.
Driving directions : From the intersection of US-19 and Park Blvd N (SR-694) in Pinellas Park: Head east on Park Blvd N (SR-694). Turn left onto Belcher Rd and continue north. Turn right onto Azalea Park Dr. Follow the road straight — 10483 Azalea Park Dr will be in the Springwood II community.
Rooms | Dimension | Description |
---|---|---|
Living Room | First level , Carpet | |
Kitchen | First level , Linoleum | |
Primary Bedroom | First level , Carpet |
2, 2, 1,245ft²
MLS#: TB8432534
2, 2, 1,245ft²
MLS#: TB8396255
2, 1, 1,190ft²
MLS#: TB8352888
2, 2, 1,125ft²
MLS#: U8243790