
628 CLEVELAND ST #612
1, 2, 1,187ft²
MLS#: TB8434111
Welcome to Your Own Private Oasis!
This unique 3-bedroom, 2-bathroom home with a bonus room blends modern upgrades, versatile living, and a backyard retreat designed for fun and relaxation.
Step inside to discover contemporary finishes throughout, including a dream closet that easily converts to a home office. Stainless Steele appliances complement the kitchen. Natural light flows through the home, thanks to updated windows (2019/2020), while key systems offer peace of mind with a new roof (2021), HVAC (2018), water heater (2022), and a recent conversion from septic to city sewer.
The highlight of this property is the backyard oasis. A place where everyday living feels like a vacation. Imagine soaking in the sparkling pool while catching your favorite movie on an outdoor screen, practicing your short game on the private putt-putt green, or simply unwinding in the tranquil, resort-style setting.
With three spacious bedrooms, two full bathrooms, and a flexible bonus room, this home adapts perfectly to your lifestyle. Whether you need space for a home office, media room, or guest suite, you’ll find endless possibilities here.
Don’t miss this one-of-a-kind property that balances stylish living with an entertainer’s dream backyard. Schedule your showing today!
Driving directions : Head South on Bayshore Blvd > Head East on Overbrook ave > Right on Betty lane > East on Parkwood house on right
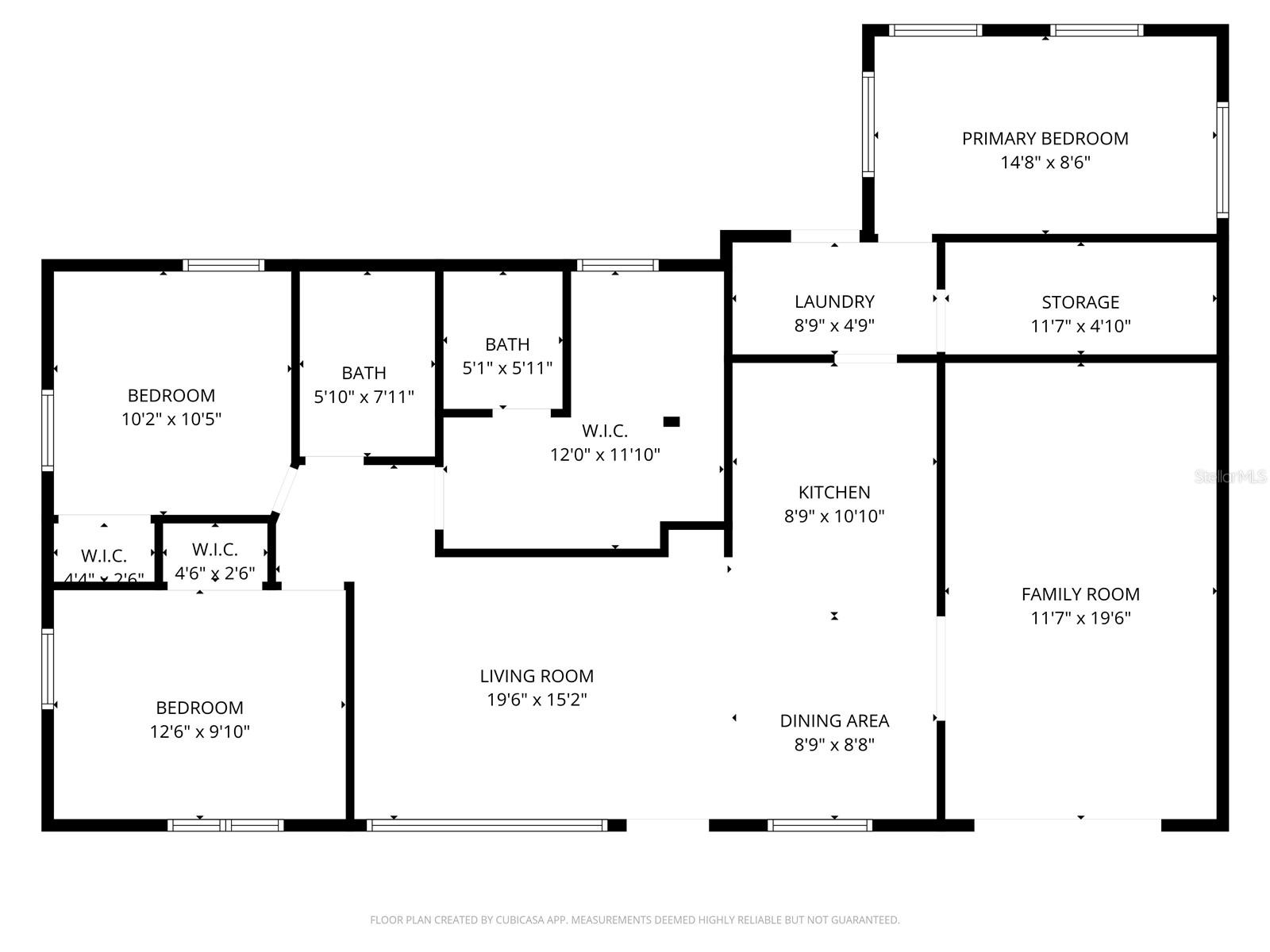
Rooms | Dimension | Description |
---|---|---|
Primary Bedroom | 14.8x8.6 | First level , Luxury Vinyl |
Bedroom 2 | 10.2x10.5 | First level , Luxury Vinyl |
Bedroom 3 | 12.6x9.1 | First level , Luxury Vinyl |
Bonus Room | 12x11.1 | First level , Luxury Vinyl |
Kitchen | 8.9x10.1 | First level , Luxury Vinyl |
Dining Room | 8.9x8.8 | First level , Luxury Vinyl |
Family Room | 11.7x19.6 | First level , Luxury Vinyl |
Living Room | 19.6x15.2 | First level , Luxury Vinyl |
Laundry | 8.9x4.9 | First level , Luxury Vinyl |
Utility Room | 11.7x4.1 | First level , Luxury Vinyl |
1, 2, 1,187ft²
MLS#: TB8434111
3, 2, 1,118ft²
MLS#: TB8427684
3, 2, 1,190ft²
MLS#: TB8389960
2, 2, 1,254ft²
MLS#: TB8412223