
3412 W SAN JUAN ST #A
2, 2, 1,594ft²
MLS#: TB8395493
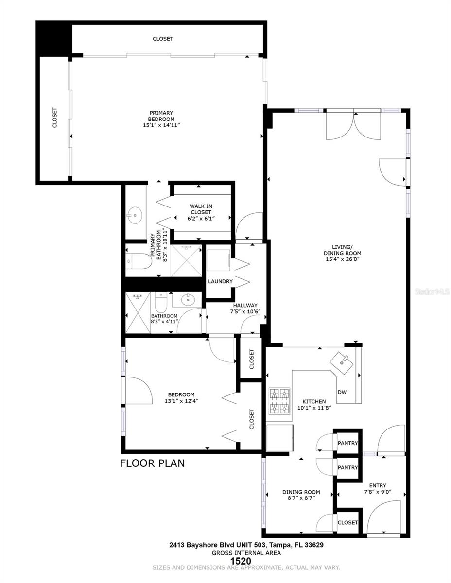
Welcome to The Atrium on Bayshore Blvd! This beautifully updated 5th-floor residence, Unit 503, delivers both style and sophistication in one of South Tampa’s most iconic high-rises — and it’s also the best-priced unit in the building, offering an incredible value for true luxury living. Inside, over 1,500 sq. ft. of living space unfolds in an open, light-filled layout designed for comfort and entertaining. A wraparound balcony frames sweeping views of the Bay and city skyline, creating a seamless blend of indoor and outdoor living.
Highlights include: Stunning high-end European cabinetry in the kitchen, paired with granite countertops, stainless steel appliances, and tons of pantry storage Gorgeous hardwood floors that add warmth and elegance throughout.
Designer mirrors that expand the living space and maximize natural light. Spacious living/dining area with multiple sliders leading to the balcony. Primary suite with ensuite bath and private balcony entry. Guest bedroom with balcony access, perfect for hosting or a home office,. In-unit laundry with storage and a newer HVAC system. The Atrium offers a resort-inspired lifestyle, including a waterfront heated pool & spa, fitness center, library, club room, 24/7 front desk security, on-site management, secured parking, and a pet-friendly community with its own dog park. With all major assessments paid in full and the Milestone Study completed, this unit is truly move-in ready.
?? 2413 Bayshore Blvd, Unit 503 | The Atrium
? The best-priced unit in the building — a rare opportunity to own luxury on Bayshore at a true bargain.
Driving directions : From Bayshore and Howard, go south 1 block to Ardson Place, turn west on Ardson and right again into the Atrium for guest parking.
Rooms | Dimension | Description |
---|---|---|
Kitchen | 10x12 | First level , Tile , Breakfast Bar , Closet Pantry |
Living Room | 16x26 | First level , Wood , Ceiling Fan(s) |
Primary Bedroom | 15x13 | First level , Wood , Ceiling Fan(s) , En Suite Bathroom |
Primary Bathroom | 8x10 | First level , Tile , Exhaust Fan , Shower No Tub |
Bedroom 2 | 12x13 | First level , Wood , Ceiling Fan(s) |
Bathroom 2 | 4x8 | First level , Tile , Exhaust Fan |
2, 2, 1,594ft²
MLS#: TB8395493
1, 1, 988ft²
MLS#: TB8430777
3, 2, 1,419ft²
MLS#: TB8361939
2, 2, 1,200ft²
MLS#: TB8418985