
2457 E DEL WEBB BLVD
2, 2, 1,687ft²
MLS#: TB8433792
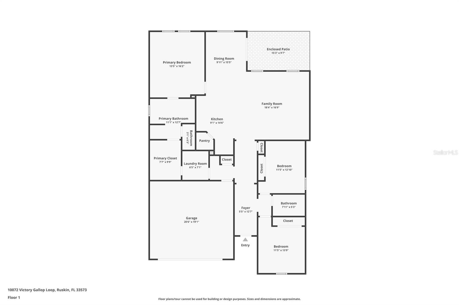
Welcome to this well-kept 3-bedroom, 2-bathroom home on a desirable corner lot in the Belmont community. With no rear neighbors and only one side neighbor, the property offers privacy along with a thoughtful, functional layout.
As you arrive, the home greets you with a beautifully landscaped yard, paver driveway, and a cozy front porch perfect for enjoying your morning coffee. Inside, a foyer accented by tray ceilings leads into a bright, open living space. The design combines a large family room, dining area, and a kitchen featuring granite countertops, stainless steel appliances, and generous cabinet space. Additional features include smart home technology, pre wired security system, and a hybrid water heater for efficiency.
The owner’s suite includes dual sinks with granite counters, a garden tub, walk-in shower, and an oversized walk-in closet with direct access to the laundry room for added convenience. Two secondary bedrooms are set apart from the primary suite, providing privacy for family or guests.
A two-car garage with epoxy flooring and ceiling-mounted racks adds both durability and extra storage.
Belmont offers a range of amenities including a resort-style pool, tennis and basketball courts, dog park, playgrounds, and walking trails. Its location provides quick access to I-75 and an easy commute to Brandon, Tampa, MacDill Air Force Base, the airport, Ybor City, and nearby beaches. Everyday conveniences such as grocery stores and restaurants are also just minutes away.
This home is move-in ready and offers a perfect balance of comfort, privacy, and community living.
Driving directions : Head South on 301, Turn Right on Paseo Al Mar, Go past the stop sign and turn right on Surluck Way. House is on the right corner of Sherluck Way and Victory Gallop Loop
Rooms | Dimension | Description |
---|---|---|
Bedroom 1 | 11x13 | First level , Carpet |
Bedroom 2 | 11x12 | First level , Carpet |
Primary Bedroom | 13x16 | First level , Carpet |
Kitchen | 9x14 | First level , Ceramic Tile |
Living Room | 18x16 | First level , Ceramic Tile |
2, 2, 1,687ft²
MLS#: TB8433792
3, 2, 1,568ft²
MLS#: TB8409578
3, 3, 2,371ft²
MLS#: TB8430145
3, 2, 1,736ft²
MLS#: A4664658