
12303 HOLMWOOD GREENS PL
3, 2, 2,082ft²
MLS#: TB8428133
Welcome home to this beautiful home in the sought-after Waterleaf Estates of Riverview; a spacious, inviting Lennar-built residence that effortlessly combines elegance and everyday comfort.
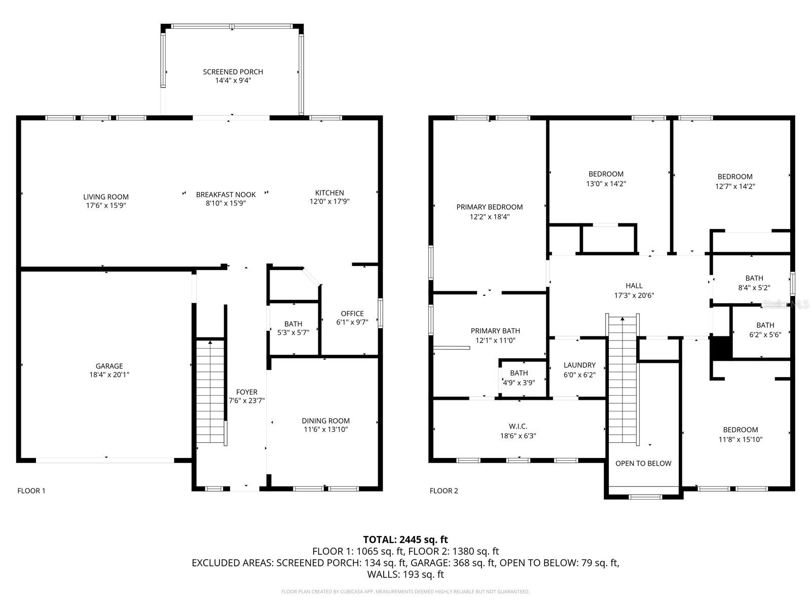
With over 2,500 sq ft, this home offers 4 bedrooms and 2.5 baths, giving everyone room to breathe and live, ideal for families, remote work, or hosting overnight guests. The heart of the home is the expansive kitchen, complete with abundant counter space, a center island, pantry, and a built-in “mom cave” nook, your cozy sanctuary for morning coffee or quiet reading while dinners simmer. Adjacent is a flexible space that could serve as a guest suite, hobby room, or home office.
Upstairs, all four bedrooms are tucked away for privacy and tranquility. The primary suite is your retreat, with a garden tub, separate shower, dual vanities, a private water closet, and a large walk-in closet that conveniently opens into the laundry room, a smart, everyday living perk.
Step outside to your covered lanai and fenced backyard, perfect for evening relaxation or weekend gatherings.
Beyond your front door, Waterleaf Estates delivers a resort-style lifestyle: fitness stations, a half-court basketball court, playground, trails, fire pit, picnic shelter, and a stunning resort-style swimming pool with an open-air clubhouse. This community is designed for connection and fun. Centrally located south of Tampa, you’ll enjoy convenient access to shopping, dining, parks, and the natural beauty of nearby state parks and green spaces.
Don’t miss the chance to make this exceptional home yours, where elegance, comfort, and community converge.
Driving directions : From I-75, take exit 246 and turn right on to Big Bend Road. Keep east on Big Bend Road turn right onto Waterleaf Vista Blvd, approximately 2 mile past US Hwy 301.
Rooms | Dimension | Description |
---|---|---|
Bedroom 2 | 12x12 | Second level , Carpet |
Bedroom 3 | 11x12 | Second level , Carpet |
Bedroom 4 | 13x11 | Second level , Carpet |
Kitchen | 10x15 | First level , Ceramic Tile , Pantry |
Great Room | 17x15 | First level , Ceramic Tile |
Primary Bedroom | 18x13 | Second level , Carpet |
Den | 11x13 | First level , Carpet |
Dining Room | 11x15 | First level , Ceramic Tile |
3, 2, 2,082ft²
MLS#: TB8428133
Riverview / South Fork Comunidad
4, 2, 2,484ft²
MLS#: TB8431161
4, 3, 2,536ft²
MLS#: A4667078
Riverview / South Fork Comunidad
6, 3, 3,182ft²
MLS#: TB8433178