
505 CAPRI BLVD
3, 2, 1,939ft²
MLS#: W7877391
Endless opportunities await at 4151 Belle Vista Drive in St. Pete Beach, Florida, a fabulous corner lot home just three blocks from the white sands of St. Pete Beach. Located in the coveted Belle Vista neighborhood, this property sits across from multi-million-dollar waterfront homes on Boca Ciega Bay, offering the potential to restore or rebuild your dream coastal retreat. The existing home—approximately 1,464 sq. ft. with a one-car garage, two to three bedrooms, two full baths, fireplace, spacious living room, large eat-in kitchen, and walkable attic—was professionally remediated after storm damage and is ready for your contractor and city approvals. A FEMA letter allows substantial improvements, and Hazard Mitigation Grant funds may be available for future construction (buyer to verify). Surrounded by a privacy wall, the property offers space for a garden or private pool area. Once home to a VA doctor from what is now the iconic Don CeSar, this property embodies St. Pete Beach history and charm, just moments from restaurants, shopping, and family-friendly amenities. Offered AS-IS with no inspection contingencies, this prime Belle Vista corner lot is perfect for those ready to restore, rebuild, and reimagine life in paradise on St. Pete Beach—one of America’s top-ranked beaches known for its stunning sunsets, dolphins, and vibrant coastal lifestyle.
Driving directions : Gulf Blvd. East on 44th Ave and right on Belle Vista Dr
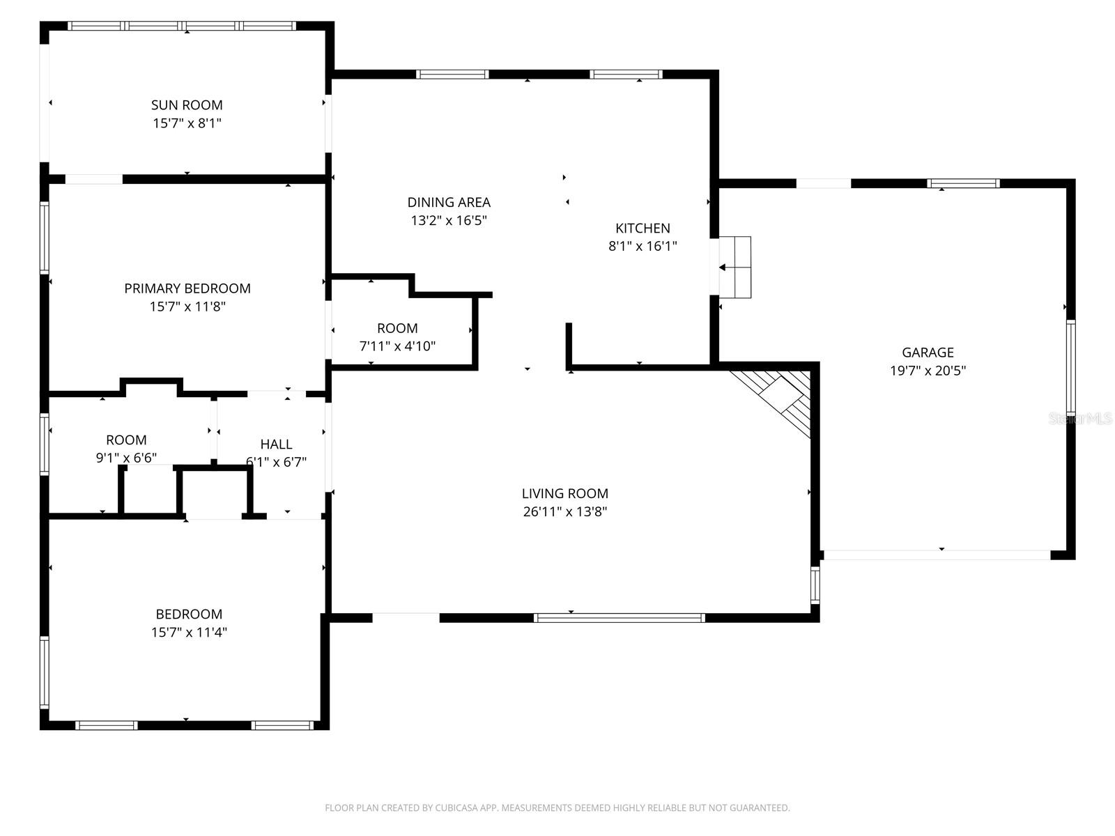
Rooms | Dimension | Description |
---|---|---|
Living Room | First level | |
Kitchen | First level | |
Primary Bedroom | 15x11 | First level |
Bedroom 2 | 15x12 | First level |
Balcony/Porch/Lanai | 15x8 | First level |
Dining Room | 9x12 | First level |
Kitchen | 11x16 | First level |
3, 2, 1,939ft²
MLS#: W7877391
2, 1, 1,212ft²
MLS#: TB8439745
2, 2, 1,110ft²
MLS#: TB8413596
1, 1, 720ft²
MLS#: TB8386709