English / Українська / Русский

Julia Vakulenko - Broker -

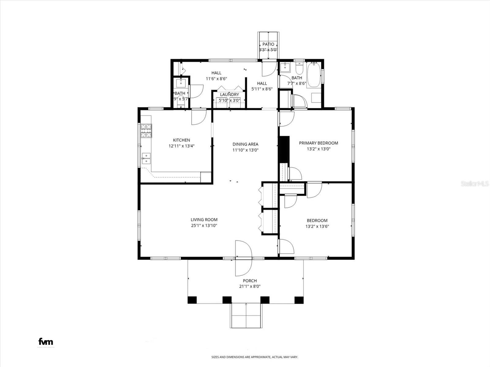
Charming 1925 Craftsman style home Front of home Front of home with pavered driveway Covered front porch with swing to enjoy the outdoors Side of home Enter into a large living room Area between living room and dining room with great storage space Dining room Spacious Dining room Updated kitchen with wood cabinets and granite counters Kitchen Primary bedroom Primary bathroom with claw foot tub/shower and pedestal vanity Guest bedroom Half bathroom with updated vanity Laundry room Exterior of back of home with covered patio Wonderful pavered outdoor space Heated salt water pool and spa TB8438182 Cascading waterfall on side of pool Enjoy the outdoors with all the amenities Beautiful setting to entertain Gazebo with outdoor seating area overlooking the pool View form home to gazebo Covered gazebo for entertaining and dining Separate shed for yard supplies Outdoor shower by the pool 2 car carport and plenty of space for RV or boat storage Oversized 2 car garage Bonus room off of garage with AC Floor plan of main house Floor plan of carport, garage and bonus room
Loading map ...
Loading map ...

915 PINE ST, CLEARWATER, 33756

  • $515,000
  • Price changed 01/12/2026 from $525,000, -1.9%
  • 2 Beds, 1 Baths (and 1 half-baths) , 1,344 Sq.Ft
  • County: Pinellas
  • Subdivision: MAGNOLIA PARK


Property highlights

  • MLS#: TB8438182
  • 8,790.00 lot size Sq.Ft.
  • Year built: 1925
  • Parking spaces: 2
  • Carport spaces: 2
  • Pool: Private pool

Property Overview

Step into the timeless elegance of this beautifully maintained 1925 Craftsman-style home, offering 2 bedrooms, 1.5 bathrooms, and the perfect blend of old Florida charm with modern updates. From the moment you arrive, you'll be captivated by the welcoming front porch and classic architectural details that make this home truly special. Enjoy a resort style backyard with a heated salt water pool and spa (2018), surrounded by a gorgeous paver deck, an outdoor shower, and a covered bar area ideal for grilling, dining, and unwinding with friends and family. The detached 2-car garage features an additional finished room perfect for a home office, gym, studio, or den. There's ample space to store a boat or RV, plus a separate carport for your extra toys. The entire backyard is enclosed with a 6-foot PVC privacy fence, creating your own private retreat. Located just minutes from downtown Clearwater, this is a rare opportunity to own a unique home with character, functionality, and incredible outdoor living. Don’t miss it!

Driving directions : From Lakeview Rd, turn East onto Pine St to address

Property Features

Rooms Dimension Description
Living Room 25x14 First level , Wood , Ceiling Fan(s)
Dining Room 12x13 First level , Wood
Kitchen 12x13 First level , Wood , Breakfast Bar , Granite Counters
Primary Bedroom 13x14 First level , Wood , Ceiling Fan(s)
Bedroom 2 13x14 First level , Wood , Ceiling Fan(s)
Studio 18x15 First level , Luxury Vinyl
Primary Bathroom 8x9 First level , Tile , Claw Foot Tub , Sink - Pedestal , Tub With Shower , Window/Skylight in Bath

Interior Features

  • Ceiling Fans(s)

Appliances

  • Dishwasher
  • Dryer
  • Gas Water Heater
  • Microwave
  • Range
  • Refrigerator
  • Washer

Heating

  • Electric

Laundry features

  • Inside
  • Laundry Room

Air Conditioning

  • Central Air

Floor Covering

  • Tile
  • Wood

Utilities

  • Cable Available
  • Electricity Connected
  • Natural Gas Connected
  • Public
  • Sewer Connected
  • Sprinkler Well

Exterior features

  • Other
  • Storage

Pool features

  • Gunite
  • Heated
  • In Ground
  • Salt Water

Parking features

  • Boat
  • Driveway

Patio and porch features

  • Covered
  • Porch

Architectural Style

  • Craftsman

Construction Materials

  • Asbestos
  • HardiPlank Type
  • Frame
  • Wood Siding

Other Structures

  • Shed(s)
  • Storage

Road Surface Type

  • Asphalt

Roof

  • Shingle

Foundation

  • Crawlspace

School Information


Listing information courtesy of SMITH & ASSOCIATES REAL ESTATE

All listing information is deemed reliable but not guaranteed and should be independently verified through personal inspection by appropriate professionals. Listings displayed on this website may be subject to prior sale or removal from sale; availability of any listing should always be independently verified.
Listing information is provided for consumer personal, non-commercial use, solely to identify potential properties for potential purchase; all other use is strictly prohibited and may violate relevant federal and state law.
Listing data comes from My Florida Regional MLS.