
8101 38TH AVE N
3, 3, 2,851ft²
MLS#: TB8420144
Under Construction. Under construction. Presenting the Coastal Craftsman a truly custom home, In the Jungle Prada neighborhood of St Petersburg.This single family Home sits on a large lot and has been meticulously curated with designer finishes. This home offers a thoughtful new construction residence for the most discerning buyer. The Home Includes 3,216 living SF, divided amongst four (4) bedrooms + 2nd level family room, three and one-half (3.5)bathrooms, electric fireplace, dry bar and spacious master suite with large walk-in shower and free-standing tub. The living room boasts 20ft ceilings in the kitchen and living room area. The kitchen features custom all wood cabinets. The Coastal Craftsman has a beautiful exterior aesthetic, which includes a Hardie Plank siding, gas lantern, true operable shutters and an over sized covered porch. 10' ceilings on the first levels of the main home make the spaces feel open & airy, and the many designer Details give the property a warm Feel. First floor block walls, solid concrete slab foundation, engineered hardwood plank flooring throughout main area and bedrooms, natural stone in bathrooms, 8' Tall Interior Doors, Impacted Rated Windows & Exterior Doors, Large Kitchen with Walk-in Pantry & Quartz Countertops, Premium Stainless Steel Appliances, 48” wide fridge, 36” duel fuel stove, custom vent hood, goodman High Efficiency Air Conditioning System , White Vinyl Fencing, Roof Gutters, Numerous Trim & Casing Millwork Details Throughout, Spacious Laundry Room with Cabinetry & Laundry Sink, well and Landscaping with Irrigation System, In wall pest system, fully wired with speakers, security cameras, wifi and So Much More! With this large lot the is plenty of room for a pool, pickleball/ sport court or anything you can dream up. The Coastal Craftsman Truly Has it All, Located in Flood Zone X Lot Just Minutes from The beach, boat ramps and to Booming Downtown St Petersburg. Book your private walk through today!
Driving directions : Head south on park st n starting at 22nd ave n. Make next left onto country club rd n. Home on left
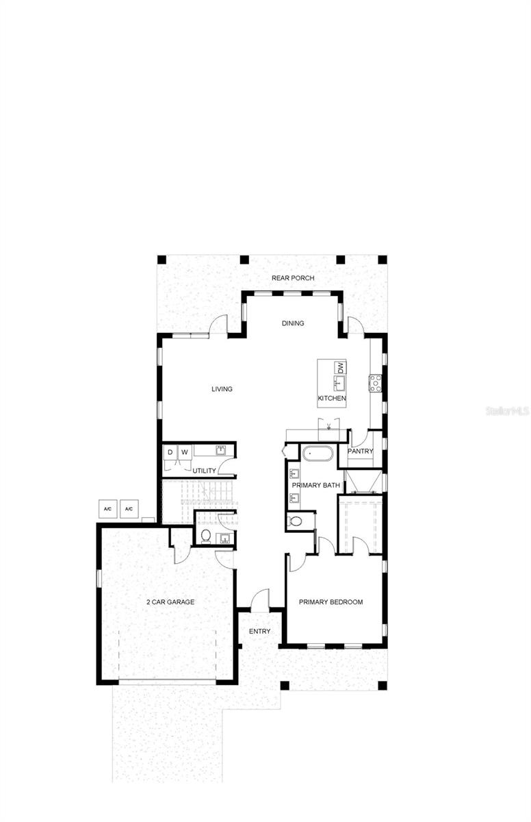
Rooms | Dimension | Description |
---|---|---|
Kitchen | First level | |
Primary Bedroom | First level | |
Living Room | First level | |
Loft | Second level |
3, 3, 2,851ft²
MLS#: TB8420144