
450 KNIGHTS RUN AVE #407
2, 2, 1,111ft²
MLS#: TB8418447
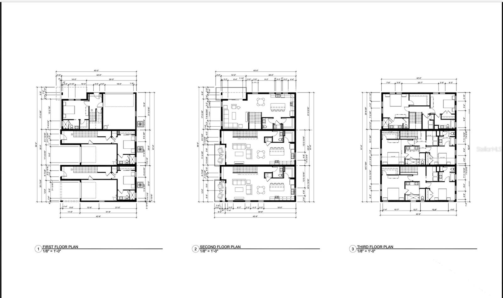
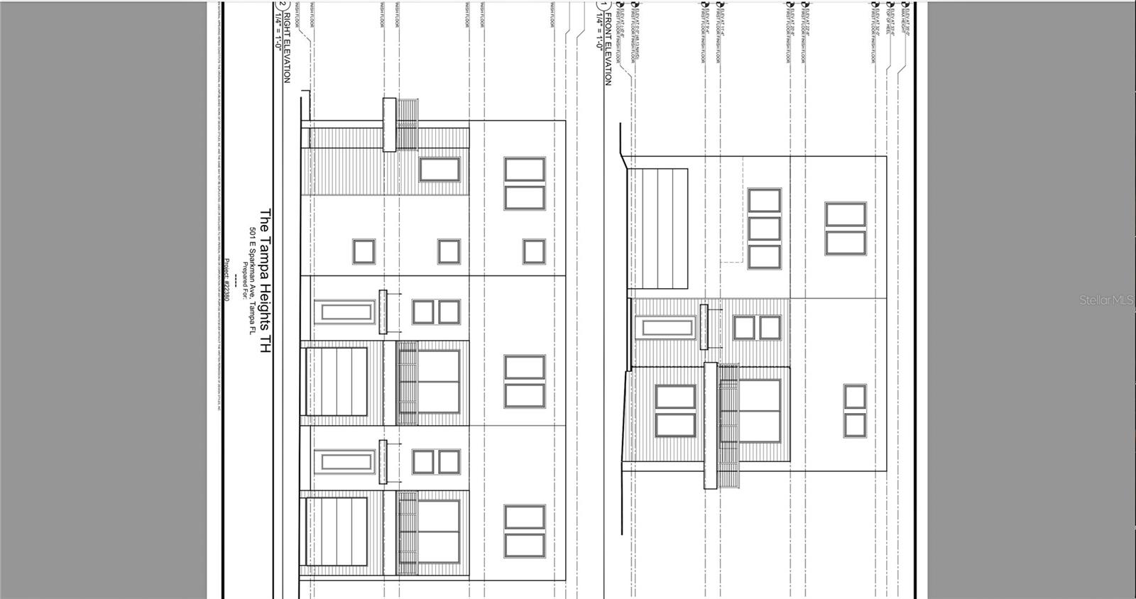
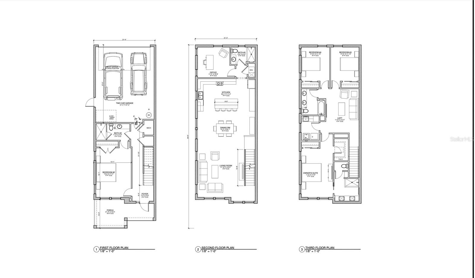
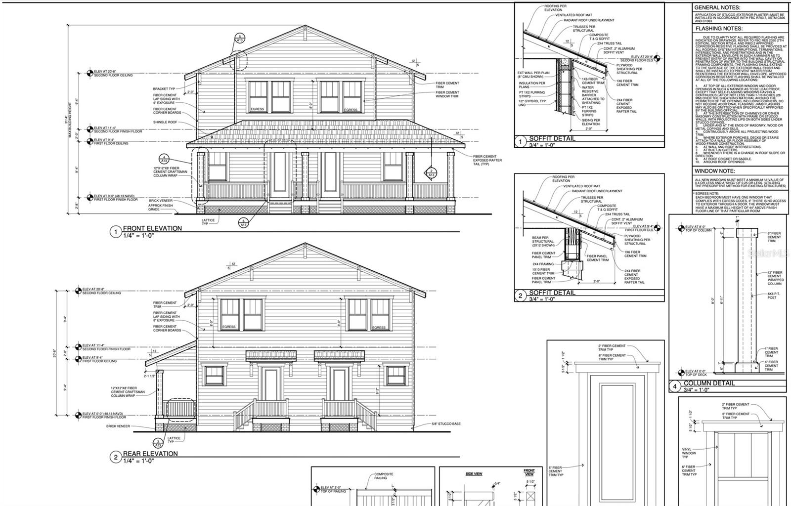
One or more photo(s) has been virtually staged. Welcome to Tampa Heights! This Gem located in Historic Tampa Heights on a Corner Lot surrounded by beautiful natural landscaping and trees.This bungalow perfectly blends historic charm with modern comfort in one of Tampa’s most sought-after neighborhoods. The Home offers warmth, character, and convenience Enjoy the short walks to Armature Works, Tampa Riverwalk, Downtown Tampa, Ybor City, and Water Street, University of Tampa! Centrally Located close to Major Transits and Amenities like Tampa International Airport, International Plaza, Westshore Mall, Hyde Park Village, SoHo, Channel Side and many more! 30 minute drive to the beautiful warm Florida Beaches! All Brand New Appliances Included! This property is ALSO ZONED RM-24 allowing you to potentially build 3 to 4 NEW Construction Townhomes on a corner lot! Flood Zone X. Your choice to Live in One while you can sell or rent out the others sounds like a good investment to many. The Owner has gone through the process to get approval CA for 2 New Townhomes on this site and is also offering 2 unit W 3-story height Townhome plans ,3 unit Townhome PLANS W 3-story Height, and a 4 Unit Townhome Plans with this deal SAVING YOU TIME AND MONEY! Rent out the Current House for a steady cash flow as you work on your Building plans. Additional Documents available Survey, Tree Survey, Architectural Plans all included. Rear alley access on this corner lot makes it larger and more flexible than most neighborhood lots. The potential for additional density or more units under Planned Development, subject to City approval. New YMCA for the Neighborhood coming soon and a planned streetcar extension into Tampa Heights will further enhance connectivity to the Beautiful Downtown Tampa. Excellent opportunity for builders, investors, to take advantage on this premier corner lot in Tampa Heights.
Driving directions : From I-275, take Exit 45A towards Downtown. Turn north on N Tampa St, then east on E Palm Ave. Left on N Central Ave and Right on E Sparkman Ave. Property is the Corner lot with House. Please use GPS.
Rooms | Dimension | Description |
---|---|---|
Balcony/Porch/Lanai | First level | |
Bathroom 1 | First level | |
Primary Bedroom | Second level | |
Bathroom 3 | Second level | |
Kitchen | First level | |
Living Room | First level | |
Bathroom 1 | First level | |
Bathroom 2 | Second level |
2, 2, 1,111ft²
MLS#: TB8418447
Tampa / Grand Central Comunidad
2, 2, 1,320ft²
MLS#: TB8438136
2, 2, 1,590ft²
MLS#: TB8380116
Tampa / Towers of Channelside Comunidad
2, 2, 1,378ft²
MLS#: TB8429163