
1336 51ST AVE NE
5, 3, 3,859ft²
MLS#: TB8350232
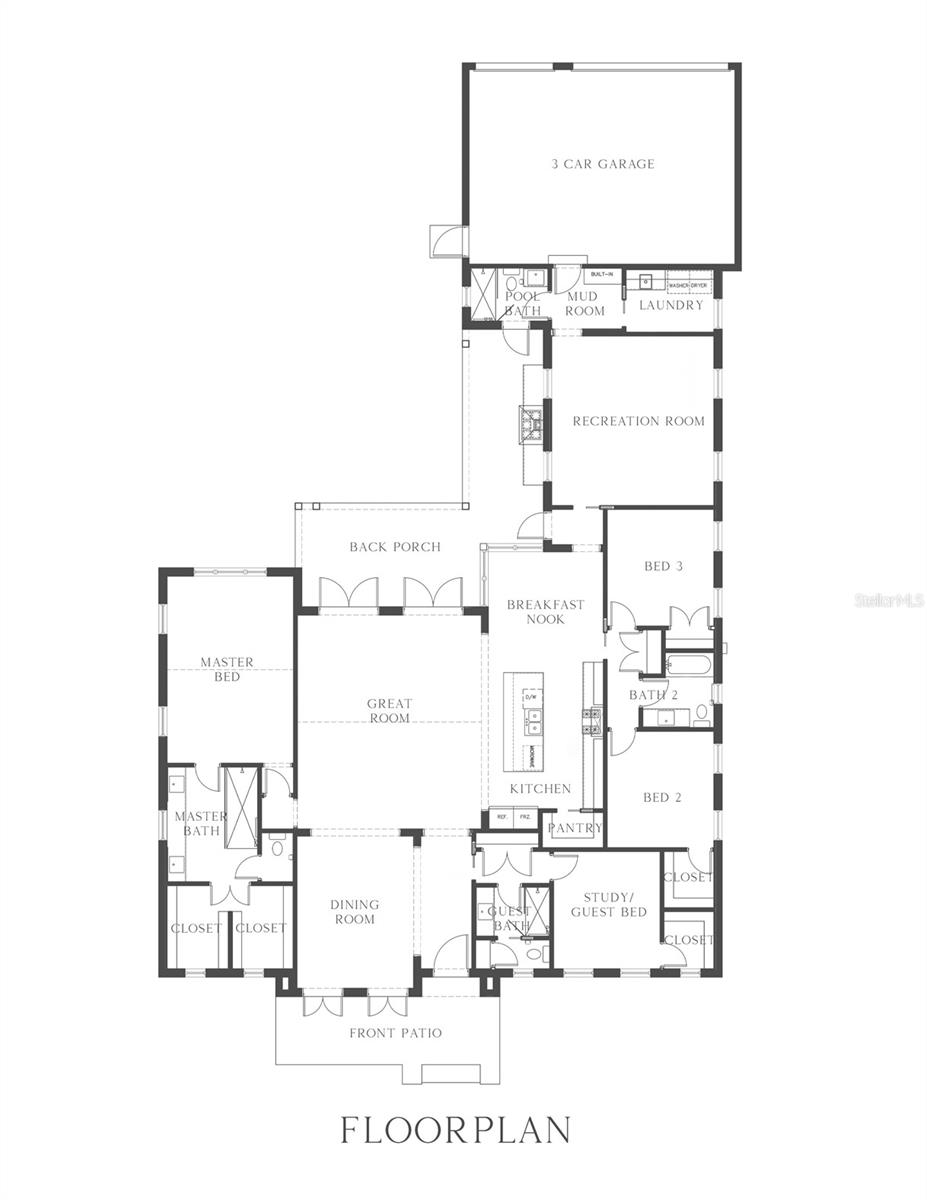
Pre-Construction. To be built. Est. Completion: Fall 2026. Would you love to live in St. Petersburg’s coveted Euclid Heights in a SINGLE-STORY HOME? Here’s your chance to make that dream a reality with Canopy Builders – St. Petersburg’s most trusted name in luxury home construction. Located in a NON-FLOOD AND NON-EVACUATION ZONE, this brand-new ALL BLOCK build sits on an expansive lot measuring 70 x 127 sq ft and offers 4 Bedrooms + Study + Recreation room, 4 Baths, and an oversized 3-car garage. The main residence boasts a total of 3,033 sq ft under air. Surrounded by the neighborhood’s charming tree lined streets, this home blends modern luxury with timeless character. All of this, just a 10-minute drive to downtown St. Pete. Buyers currently have an EXCLUSIVE opportunity to personalize this home with the expertise of an in-house designer from the Canopy Builders team—but this chance won’t last long. A generous design allowance allows for the selection of customized finishes, ensuring every detail aligns seamlessly with the home's luxury specifications. Entering through the front corridor, you’re welcomed into the spacious great room, featuring vaulted ceilings. Off the great room sits the formal dining room and kitchen, complete with a breakfast nook, pantry, gas oven and range, and a large center island ideal for both cooking and gathering. The primary suite, located off the great room, also offers vaulted ceilings, dual closets, and a luxurious en suite bathroom with dual vanities. Featuring a split floor plan, the study or guest bedroom includes a full closet and a detached bathroom for added flexibility. Bedrooms two and three share a bathroom, providing both function and privacy. Toward the back of the home, a recreation room offers multipurpose space—perfect for entertaining, hobbies, or a playroom. Beyond the recreation room, you’ll find a full pool bathroom with shower, a mudroom with built-in cabinetry, and a laundry room with a sink for everyday convenience. Outside, double doors from the great room open to the covered back porch, featuring an outdoor kitchen—ideal for relaxing or entertaining by the pool. Several key features have already been planned including a tankless gas water heater, impact-resistant windows, and engineered hardwood flooring throughout. Additional luxury elements include 10’ ceilings throughout , 12’ ceilings in the great room and primary bedroom, as well as 8’ interior doors. Canopy’s signature gas sconce adds an elegant touch to the front porch. The large backyard offers ample space for lounging and entertaining. Enjoy a 10 minute drive to downtown St. Pete, 20-minute drive to St. Pete Beach and only 20 minutes to Tampa. Don’t miss the opportunity to make this breathtaking home yours today!
Driving directions : From I-275: Take exit 26 towards 54th Ave N. Turn East onto 54th Ave N. Turn right onto 16th St N. Turn left onto 47th Ave N. The property at 1233 47th Ave N will be on the left.
Rooms | Dimension | Description |
---|---|---|
Kitchen | First level | |
Great Room | First level | |
Dining Room | First level | |
Primary Bedroom | First level | |
Primary Bathroom | First level |
5, 3, 3,859ft²
MLS#: TB8350232
4, 3, 2,630ft²
MLS#: TB8426396
St. Petersburg / Venetian Isle Comunidad
5, 3, 2,495ft²
MLS#: TB8433140
4, 3, 2,516ft²
MLS#: TB8424675