English / Українська / Русский

Julia Vakulenko - Broker -

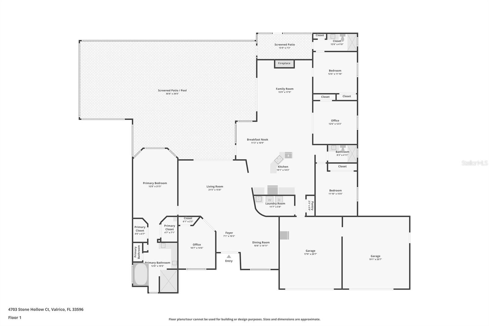
WELCOME TO 4703 STONE HOLLOW! AERIAL OF BACK AND SIDE YARD SPACIOUS FOYER AT THE ENTRY OPEN AND BRIGHT LIVING ROOM. DOORS LEAD TO PRIMARY BEDROOM AND OFFICE/BEDROOM 2 BIG WINDOWS ALLOW ALL THE NATURAL LIGHTING BIG SLIDERS ALLOW ALL THE NATURAL LIGHTING IN THE FAMILY ROOM FAMILY RROM WITH COZY FIREPLACE FAMILY ROOM VIEW INTO KITCHEN FAMILY ROOM VIEW INTO KITCHEN SHUTTERED SLIDERS ADD ADDITIONAL PRIVACY WHEN NEEDED OPEN AND BRIGHT LIVING ROOM. SHUTTERED SLIDERS PROVIDE ADDITIONAL PRIVACY AS NEEDED OPEN AND BRIGHT LIVING ROOM. SHUTTERED SLIDERS PROVIDE ADDITIONAL PRIVACY AS NEEDED MODERN LIGHTING AT FOYER AND DINING ROOM KITCHEN NOOK WITH A VIEW AMPLE STORAGE IN THIS KITCHEN! AMPLE STORAGE IN THIS KITCHEN! ISLAND PROVIDES ADDITIONAL SEATING FOR GUESTS AMPLE STORAGE IN THIS KITCHEN! AMPLE STORAGE IN THIS KITCHEN! LAUNDRY ROOM SOAKING TUB IN PRIMARY BRINGS ALL THE LUXURY DOUBLE SINK VANITY PROVIDES ROOM FOR EVERYONE AND MAKES GETTING READY EASY WALK IN SHOWER AND SEPARATE SOAKING TUB IN PRIMARY BRINGS ALL THE LUXURY DOUBLE SINK VANITY PROVIDES ROOM FOR EVERYONE AND MAKES GETTING READY EASY PRIMARY BEDROOM OVERLOOKS THE POOL PRIMARY BEDROOM OVERLOOKS THE POOL DUAL CLOSETS IN PRIMARY BEDROOM DUAL CLOSETS IN PRIMARY BEDROOM BEDROOM 2 CURRENTLY USED AS AN OFFICE HAS A CLOSET BEDROOM 5 HAS A PRIVATE ON-SUITE BEDROOM 5 BATHROOM 3 OFF BEDROOM 5 AND POOL ACCESS BATHROOM 3 OFF BEDROOM 5 AND POOL ACCESS BEDROOM 4 HAS BUILT-INS AND CURRENTLY USED AS A CRAFT ROOM DOUBLE DOORS LEAD TO BEDROOM 4 WHICH HAS BUILT-INS AND CURRENTLY USED AS A CRAFT ROOM BATHROOM 2 BATHROOM 2 BEDROOM 3 BEDROOM 3 ENJOY FLORIDA LIVING! SCREENED POOL WITH COVERED LANAI PROVIDES A GREAT WEEKEND RETREAT! TB8440534 ENJOY FLORIDA LIVING! SCREENED POOL WITH COVERED LANAI PROVIDES A GREAT WEEKEND RETREAT! ENJOY FLORIDA LIVING! SCREENED POOL WITH COVERED LANAI PROVIDES A GREAT WEEKEND RETREAT! ENJOY FLORIDA LIVING! SCREENED POOL WITH COVERED LANAI PROVIDES A GREAT WEEKEND RETREAT! POOL BATH/BEDROOM 5 WITH EN-SUITE 5TH BEDROOM ON BACKSIDE OF HOME HAS A FULL BATH ATTACHED BEAUTIFUL BACKYARD WITH NATURAL BARRIER PROVIDES ADDITIONAL PRIVACY SPACIOUS SIDE YARD BEAUTIFUL BACKYARD WITH NATURAL BARRIER PROVIDES ADDITIONAL PRIVACY 3 CAR GARAGE WITH LARGE DRIVEWAY PROVIDES PLENT OF PARKING FOR FAMILY AND GUESTS SPACIOUS SIDE YARD AERIAL VIEW AERIAL VIEW AERIAL VIEW OF AREA PROVIDES LOCATION OF PROPERTY AERIAL VIEW WELCOME TO 4703 STONE HOLLOW! SPACIOUS SIDE YARD FLOORPLAN
Loading map ...
Loading map ...

4703 STONE HOLLOW CT, VALRICO, 33596



Property highlights

  • MLS#: TB8440534
  • 14,560.00 lot size Sq.Ft.
  • Year built: 1993
  • Parking spaces: 3
  • Pool: Private pool

Property Overview

HIGHLY DESIRABLE STONE HOLLOW NEIGHBORHOOD ! NO HOA OR CDD ! VERY QUIET STREET ! WELL MAINTAINED HOME WITH PRIDE OF OWNERSHIP ! MASSIVE PRIVATE POOL W/SCREENED-IN LANIA ! MANY RECENT UPDATES & UPGRADES OVER THE LAST SEVERAL YEARS ! GREAT LOCATION AND GOOD SCHOOLS ! Come See This Gorgeous Custom Home Built By Schmidt Brothers Builders Located At 4703 Stone Hollow Ct Valrico, Fl ! YOUR NEW HOME Has 5 Bedrooms 3 Bathrooms 3 Car Garage With “Just Shy” Of 3,000 Square Feet Of Living Area ! Here Are The Many UPDATES & UPGRADES This Home Has Had Over The Last Several Years: New Roof (2025) Interior Paint (2025) Two Garage Door Openers (2025) Garbage Disposal (2025) New Septic Drain Field (2024) Pool Enclosure Re-Screened (2023) New Appliances (2023) HVAC (2022) Exterior Paint (2022) Pool Pump (2020) Hot Water Heater (2019) Gutters (2018) The Beautiful CHEF’S KITCHEN Boast Of: Wood Cabinets W/Lots Of Storage & Great Working Space For Preparing Meals, Corian Counter Tops, Stainless Steel Appliances, Closet Pantry And Your New Kitchen Is PERFECTLY POSITIONED To Entertain Guests, Friends & Family ! The Kitchen Over-Looks The Family Room, Nook And Pool Area FOR LIVING YOUR BEST FLORIDA LIFE STYLE ! Your Private Owners Suite Offers: HUGE BEDROOM With Bay Windows Over-Looking The Pool, Jacuzzi Tub, Walk-In Shower, Granite Counter Tops With Dual Sinks, Very Tall Coffered Ceilings And Two Nice Size Walk-In Closets ! If The Above Features Are Not Enough How-About A Few More: 5th Bedroom Can Be Used As An En-Suite With Its Own Private Bathroom, PLANTATION SHUTTERS In Most Rooms, Wood Burning Fireplace W/Brick Accents, LARGE 5 ¼” Baseboards Thru-Out Home, Living/Family Room Sliders Pocket For The MAXIMUM FLORIDA LIVING, Crown Molding In Some Living Areas, Beautiful/Mature Landscaping, Gas Drops Available For Fireplace & Dryer, Rounded Corners And Arches Thru-Out Home And Your HUGE/PRIVATE LAP POOL Is 8’ Deep W/Diving Board ! HONESTLY, A HOME LIKE THIS DOES NOT COME AVAILABLE EVERYDAY ! This Home Is Set Up Currently Where Either One Or Two Bedrooms Can Be Used For Office, Craft Room Or Den ! With No HOA Or CDD This Home Is Perfect For That Buyer Looking To Stay Away From HOA Drama ! This Magnificent Home Located Off Of Beautiful Little Road Is Close To Shopping, Schools, Restaurants, Hospital And Recreation ! YOU WILL WANT TO SCHEDULE YOUR PRIVATE SHOWING ASAP ! Please Call Your Agent Today ! THIS HOME/PROPERTY IS ONE YOU WANT TO SEE !

Driving directions : TAKE BLOOMINGDALE AVE EAST TO LITTLE ROAD AND TURN LEFT. GO NORTH ON LITTLE ROAD AND TURN RIGHT ONTO STONE HOLLOW COURT HOME IS ON THE RIGHT.

Property Features

Rooms Dimension Description
Family Room 20x17 First level , Travertine
Living Room 22x16 First level , Travertine
Kitchen 18x18 First level , Travertine
Dining Room 16x12 First level , Travertine
Primary Bedroom 20x14 First level , Carpet
Bedroom 2 14x11 First level , Engineered Hardwood
Bedroom 3 14x11 First level , Carpet
Bedroom 4 13x12 First level , Travertine
Bedroom 5 14x12 First level , Carpet
Dinette 10x8 First level , Travertine
Balcony/Porch/Lanai 25x13 First level , Concrete

Interior Features

  • Ceiling Fans(s)
  • Central Vaccum
  • Coffered Ceiling(s)
  • Crown Molding
  • Eat-in Kitchen
  • High Ceilings
  • Kitchen/Family Room Combo
  • Living Room/Dining Room Combo
  • Open Floorplan
  • Solid Surface Counters
  • Solid Wood Cabinets
  • Split Bedroom
  • Thermostat
  • Walk-In Closet(s)
  • Window Treatments

Appliances

  • Built-In Oven
  • Cooktop
  • Dishwasher
  • Disposal
  • Electric Water Heater
  • Microwave
  • Range Hood
  • Refrigerator

Heating

  • Central

Laundry features

  • Gas Dryer Hookup
  • Inside

Air Conditioning

  • Central Air

Fireplace

  • Living Room

Floor Covering

  • Carpet
  • Hardwood
  • Travertine

Utilities

  • BB/HS Internet Available
  • Cable Available
  • Cable Connected
  • Electricity Available
  • Electricity Connected
  • Phone Available
  • Propane
  • Sprinkler Meter
  • Underground Utilities
  • Water Available
  • Water Connected

Exterior features

  • Garden
  • Outdoor Kitchen
  • Private Mailbox
  • Rain Gutters
  • Sidewalk
  • Sprinkler Metered

Pool features

  • Diving Board
  • Gunite
  • In Ground
  • Lap
  • Outside Bath Access
  • Screen Enclosure

Parking features

  • Garage Door Opener

Patio and porch features

  • Covered
  • Front Porch
  • Rear Porch
  • Screened

Architectural Style

  • Florida
  • Traditional

Construction Materials

  • Block
  • Stucco

Road Surface Type

  • Paved

Property Condition

  • Completed

Roof

  • Shingle

Foundation

  • Slab

Vegetation

  • Mature Landscaping
  • Trees/Landscaped

Lot Features

  • Cleared
  • In County
  • Landscaped
  • Level
  • Sidewalk

Listing information courtesy of FLORIDA EXECUTIVE REALTY

All listing information is deemed reliable but not guaranteed and should be independently verified through personal inspection by appropriate professionals. Listings displayed on this website may be subject to prior sale or removal from sale; availability of any listing should always be independently verified.
Listing information is provided for consumer personal, non-commercial use, solely to identify potential properties for potential purchase; all other use is strictly prohibited and may violate relevant federal and state law.
Listing data comes from My Florida Regional MLS.