
3854 42ND AVE S
3, 2, 2,621ft²
MLS#: TB8424845
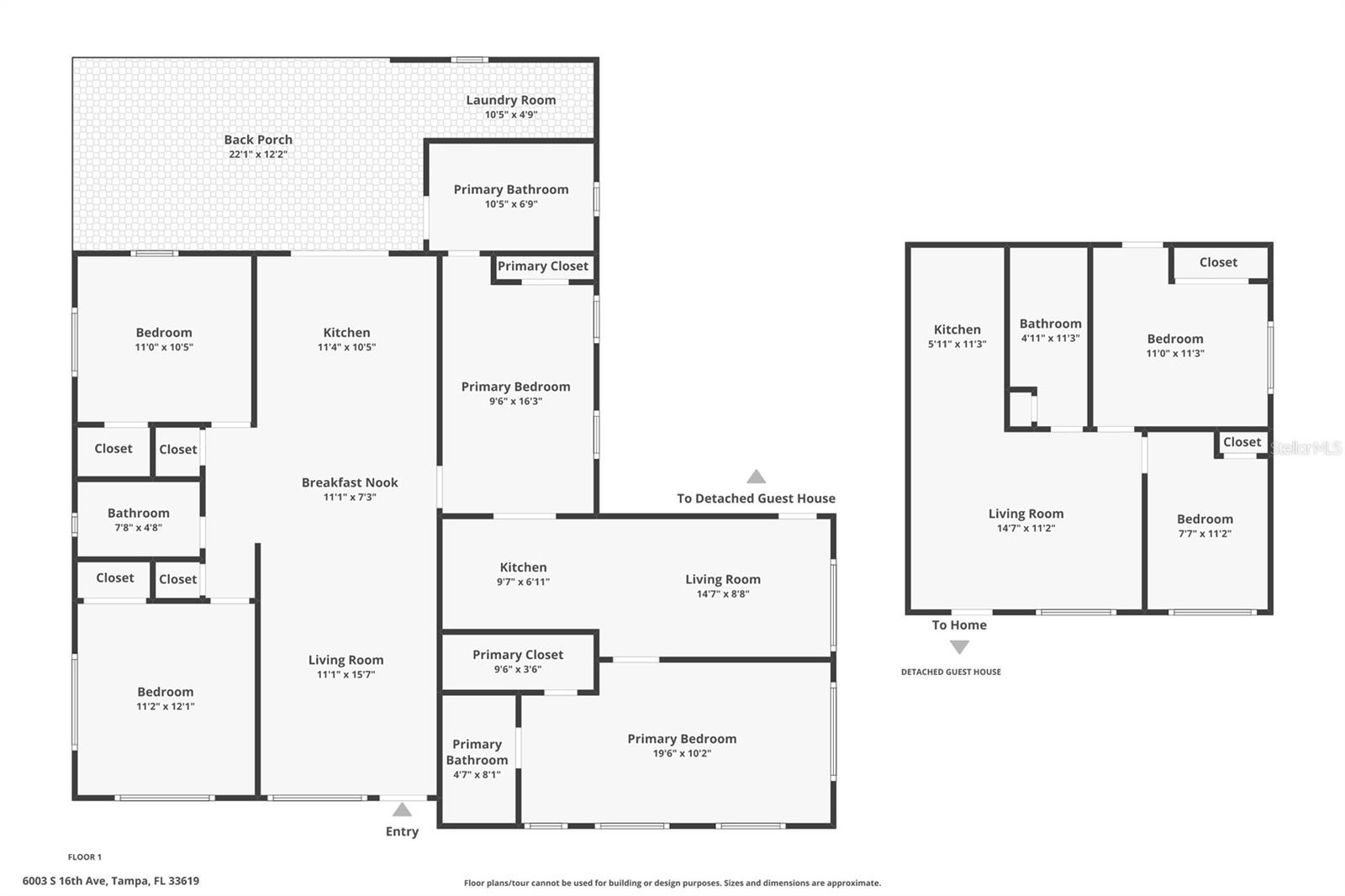
LOCATION! LOCATION! LOCATION! One-of-a-kind real estate opportunity now available! Don’t let it slip away. Are you seeking a private retreat with ample space? This stunning estate provides the serenity and seclusion you desire, all just a quick 10-minute drive to Downtown Tampa. Plus, it’s only 20 minutes to some of the area’s top shopping and dining destinations! The property spans 4.77 acres and is fully enclosed with fencing. It features a main residence alongside a separate 2-bedroom, 1-bath guesthouse. The primary home offers 3 bedrooms and 1 bathroom, with an additional attached in-law suite that includes an extra bedroom and bathroom with its own entrance—effectively making the main house a 4-bedroom, 2-bath home. Outside, you'll find a barn, a picturesque pond stocked with tilapia, and a spacious gazebo on a concrete pad equipped with a wood-fired oven, perfect for entertaining guests. Just steps away are two outdoor restrooms. A large metal storage building offers plenty of space for gardening tools, vehicles, boats, or sports gear—and it can easily serve as a workshop. The property boasts three electric meters, including one commercial. Additional highlights include a gated entrance, a peaceful wooded lot with a winding driveway, and barn keeper’s living quarters suitable for an RV. This versatile property opens up countless possibilities—bring your ideas! Whether enjoy it as a personal haven or explore income opportunities by renting out one or both homes, subdividing the land, or constructing additional units. Best of all, there are no HOA or CDD restrictions. Opportunities like this are rare, so act fast! Please note, the property is currently tenant-occupied; do not disturb the tenants. It is being sold AS IS. The seller has never lived in either the main or guest house. A portion of the property is actively generating $4,500 in monthly rental income, with potential for higher returns based on owner discretion.
Driving directions : From 301 North, make a left at Causeway, a right at Maydell, a left at 16th Ave S, property is on the left hand side.
Rooms | Dimension | Description |
---|---|---|
Primary Bedroom | 12x12 | First level , Laminate |
Kitchen | 12x12 | First level , Laminate |
Living Room | 14x14 | First level |
3, 2, 2,621ft²
MLS#: TB8424845
3, 2, 2,815ft²
MLS#: TB8439808
2, 2, 1,821ft²
MLS#: TB8440546
3, 3, 2,275ft²
MLS#: TB8358199