English / Українська / Русский

Julia Vakulenko - Broker -

Welcome home to your Crystal Beach Oasis~ Brand NEW roof in 2025 & all new lush landscaping~ Gracious & welcoming front entry with wraparound porch~ Front entry from quiet cul-de-sac with garage at the rear of home~ New lush landscaping & uplighting surrounds the home~ Paver wrap around porch & beautiful double door front entry~ Perfectly positioned on a quiet cul-de-sac with private rear entry~ Safely in a NON-FLOOD ZONE but just minutes to the Gulf~ Jaw dropping cathedral ceilings upon entry & beautiful double-sided wood burning fireplace~ Perfectly designed 3-way split floor plan with 2 additional bedrooms on either side of the front entry~ Open loft perfect for an office, library or bonus living space~ Opened to main living~ Built-in shelving & desk make this the perfect office space~ Open main living space to the kitchen/dining room combo making entertaining a breeze~ French doors from all main living spaces out to the wrap around porch & pool deck~ Double door entry to the master oasis privately located at the rear of the home~ Space above the wood burning fireplace is perfect for your flat screen TV~ A chef's true delight~ Natural light flows throughout~ Dining room offers access to the wrap around porch & updated fixtures~ Huge kitchen island with seating all the way around & big enough for at least 8 people~ Brand NEW oven/microwave combo in 2024~ Stunning granite countertops~ Flat burner stove & beautiful solid wood shaker cabinets~ Oversized walk-in pantry~ Laundry room adjacent from the pantry with butcherblock countertops, deep utility sink, & access to rear patio~ Open & airy spaces~ The master suite is a true oasis~ Private pool views & pool access from en-suite~ Grand double door entry to main living~ Stunning master bath~ Oversized garden tub & quartz double vanity~ Beautifully updated glass walk-in shower~ Large master walk-in shower~ Both additional bedrooms are on either side of the front formal living room~ Bedroom #2 is a second master with a large walk-in closet & private ensuite-bath~ Brand NEW solid wood pocket doors~ Neutral colors throughout~ Huge walk-in closet~ Bedroom #2 en-suite bath~ Large walk-in shower with built-in bench~ Bedroom #3 offers beautiful vaulted ceilings~ Bedroom #3 can also be an additional master with a walk-in closet and private en-suite bath~ Bath also offers access to main living hallway for guests~ Oversized vanity with additional space for makeup vanity~ Walk-in shower & private access to the pool~ Floor plan review~ Brand NEW pool pump in 2025 & pool resealed in 2022~ Paver patio recently power washed & ready for your outdoor seating~ Pristine lap pool perfectly positioned on the side of home~ Lush landscaping offers ample amounts of privacy~ Outdoor patio space big enough for a large table set for casual outdoor dining~ You'll love entertaining here~ Laundry room access & attached 2-car garage~ Beautiful rear entry~ Oversized 2-car garage privately positioned at the rear of home~ Oversized 0.34 acre lot & walkway runs alongside the home~ Sunset front entry~ Sunset rear entry~ Pool lighting & outdoor lighting perfect for a night swim~ Paradise~ Just a few minutes from the public Sutherland Bayou public boat ramp~ No flood worries here while enjoying just being minutes to the Dunedin Causeway & the most beautiful Gulf beaches~ Crystal Beach offers "old Florida" charm that's hard to find~ Crystal Beach is a golf-cart friendly community~ You'll loving coming home here~ Pinellas County trail runs from Tarpon Springs to St. Petersburg with so many fun & beautiful stops along the way~ Enjoy jaw dropping sunsets nearly every evening~
Loading map ...
Loading map ...

266 FLORIDA BLVD, CRYSTAL BEACH, 34681

  • $999,900
  • Price changed 02/11/2026 from $1,049,900, -4.76%
  • 3 Beds, 3 Baths , 2,648 Sq.Ft
  • County: Pinellas
  • Subdivision: SEASIDE WOOD


Property highlights

  • MLS#: TB8445394
  • 14,606.00 lot size Sq.Ft.
  • Year built: 1999
  • Parking spaces: 2
  • Pool: Private pool
  • Listed: 11/14/2025
  • Taxes: $11,391.13
  • HOA fees (monthly): $20.83
  • Average Monthly Fees (not including CDD, if any): $20.83
  • Virtual Tour

Property Overview

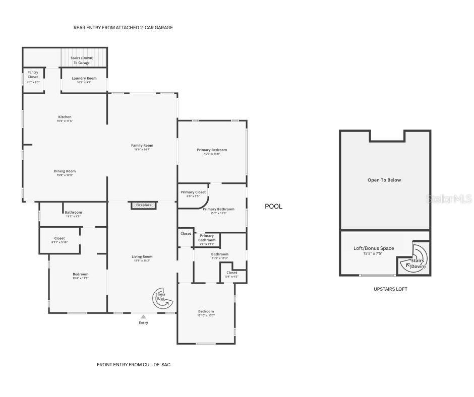
Exceptional price adjustment — Crystal Beach’s GREATEST value and smartest buy! Nestled on a quiet cul-de-sac on one of the highest points within the community and just steps from the water with NO flood insurance required—this custom Key West–style pool home delivers the ultimate in coastal luxury living. Spanning nearly 3,000 sq ft, this 3-bedroom, 3-bathroom home plus loft showcases a beautifully designed 3-way split and open floor plan, with three true en-suite bedrooms for exceptional comfort and privacy. Through the glass French double-door front entry, you’re welcomed by soaring cathedral ceilings, oversized windows that flood the home with natural light, and a breathtaking floor-to-ceiling double-sided wood-burning fireplace anchoring both the formal and main living rooms. A striking spiral staircase leads to a spacious loft—ideal as an office, library, studio, or bonus retreat—offering endless versatility. Perfectly crafted for indoor/outdoor living, French doors from every main living space that open onto the expansive paver wraparound porch and the oversized pool deck. The chef’s kitchen impresses with an oversized island with a second sink and seating up to eight, solid-wood shaker cabinetry, granite countertops, a NEW 2024 oven/microwave combo, flat-top range, and a large walk-in pantry—all seamlessly connected to the generous dining room for effortless entertaining. The primary suite is a private oasis with tranquil pool views framed by lush NEW landscaping, a large walk-in closet, an oversized garden tub, quartz double vanities, an updated glass walk-in shower, and direct access to the pool. Both additional bedrooms are oversized en-suites also with walk-in closets, ensuring comfort for family and guests alike. The nearly half-acre lot feels like a private tropical resort with lush new landscaping and uplighting surrounding the home, a sparkling lap pool with a brand-NEW 2025 pool pump and 2022 resurfacing, and abundant outdoor space to relax or entertain. Major upgrades provide peace of mind, including a NEW 2025 roof, NEW 2023 water heater, and a recently passed transferable 4-point inspection - no insurance worries here! The oversized rear-facing 2-car garage (accessed via Seaford Avenue) adds convenience, and with no deed restrictions, you can store your boat, RV, or water toys at home—especially ideal with the public Southerland Bayou boat ramp just minutes away. Crystal Beach is one of the Gulf Coast’s most charming and laid-back communities, this exceptional property offers direct access to the Pinellas Trail, nightly sunsets at Live Oak Park, golf-cart-friendly streets, and proximity to top-rated schools including Palm Harbor University High. A true Crystal Beach gem, this one-of-a-kind coastal retreat blends luxury, comfort, and lifestyle in perfect harmony—don’t miss your chance to experience fine coastal living at its best!

Driving directions : South on Alt-19 to a right onto Crystal Beach Ave. Left onto Vincent St. Left onto Florida Blvd to property at the end in cul-de-sac.

Property Features

Rooms Dimension Description
Living Room 16x25 First level , Tile , Ceiling Fan(s)
Family Room 16x25 First level , Tile , Ceiling Fan(s)
Loft 16x11 Second level , Carpet , Built-In Shelving
Dining Room 19x13 First level , Tile
Kitchen 19x12 First level , Tile , Breakfast Bar , Ceiling Fan(s) , Granite Counters , Kitchen Island , Walk-In Pantry
Primary Bedroom 16x14 First level , Carpet , Ceiling Fan(s) , En Suite Bathroom
Primary Bathroom 16x11 First level , Tile , Built-In Shower Bench , Double Vanity , En Suite Bathroom , Garden Bath , Stone Counters , Tub with Separate Shower Stall , Water Closet/Priv Toilet
Bedroom 2 13x20 First level , Carpet , Ceiling Fan(s) , En Suite Bathroom
Bathroom 2 15x6 First level , Tile , En Suite Bathroom , Makeup/Vanity Space , Shower No Tub , Single Vanity , Tile Counters
Bedroom 3 13x14 First level , Tile , En Suite Bathroom , Makeup/Vanity Space , Shower No Tub , Single Vanity , Tile Counters

Interior Features

  • Cathedral Ceiling(s)
  • Ceiling Fans(s)
  • Eat-in Kitchen
  • High Ceilings
  • Kitchen/Family Room Combo
  • Open Floorplan
  • Primary Bedroom Main Floor
  • Solid Wood Cabinets
  • Split Bedroom
  • Stone Counters
  • Thermostat
  • Vaulted Ceiling(s)
  • Walk-In Closet(s)
  • Window Treatments

Appliances

  • Built-In Oven
  • Cooktop
  • Dishwasher
  • Disposal
  • Dryer
  • Microwave
  • Refrigerator
  • Washer
  • Water Softener

Heating

  • Central

Laundry features

  • Inside
  • Laundry Room

Air Conditioning

  • Central Air

Fireplace

  • Wood Burning

Floor Covering

  • Carpet
  • Tile

Utilities

  • Cable Available
  • Electricity Connected
  • Public
  • Sewer Connected
  • Sprinkler Recycled
  • Water Connected

Exterior features

  • French Doors
  • Lighting
  • Private Mailbox
  • Rain Gutters
  • Sidewalk

Pool features

  • Heated
  • In Ground
  • Lighting
  • Outside Bath Access

Parking features

  • Curb Parking
  • Driveway
  • Garage Door Opener
  • Garage Faces Rear
  • Oversized
  • Parking Pad

View

  • Pool
  • Trees/Woods

Patio and porch features

  • Covered
  • Front Porch
  • Rear Porch
  • Wrap Around

Pets restrictions

  • Per Pinellas County ordinance.

Architectural Style

  • Key West

Community Features

  • Golf Carts OK
  • Irrigation-Reclaimed Water
  • Sidewalks
  • Street Lights

Construction Materials

  • Metal Frame
  • Vinyl Siding
  • Frame

Road Surface Type

  • Paved

Roof

  • Shingle

Foundation

  • Slab

Vegetation

  • Mature Landscaping
  • Trees/Landscaped

Lot Features

  • Cul-De-Sac
  • Landscaped
  • Oversized Lot
  • Sidewalk
  • Paved

School Information


Listing information courtesy of COLDWELL BANKER REALTY

All listing information is deemed reliable but not guaranteed and should be independently verified through personal inspection by appropriate professionals. Listings displayed on this website may be subject to prior sale or removal from sale; availability of any listing should always be independently verified.
Listing information is provided for consumer personal, non-commercial use, solely to identify potential properties for potential purchase; all other use is strictly prohibited and may violate relevant federal and state law.
Listing data comes from My Florida Regional MLS.