English / Українська / Русский

Julia Vakulenko - Broker -

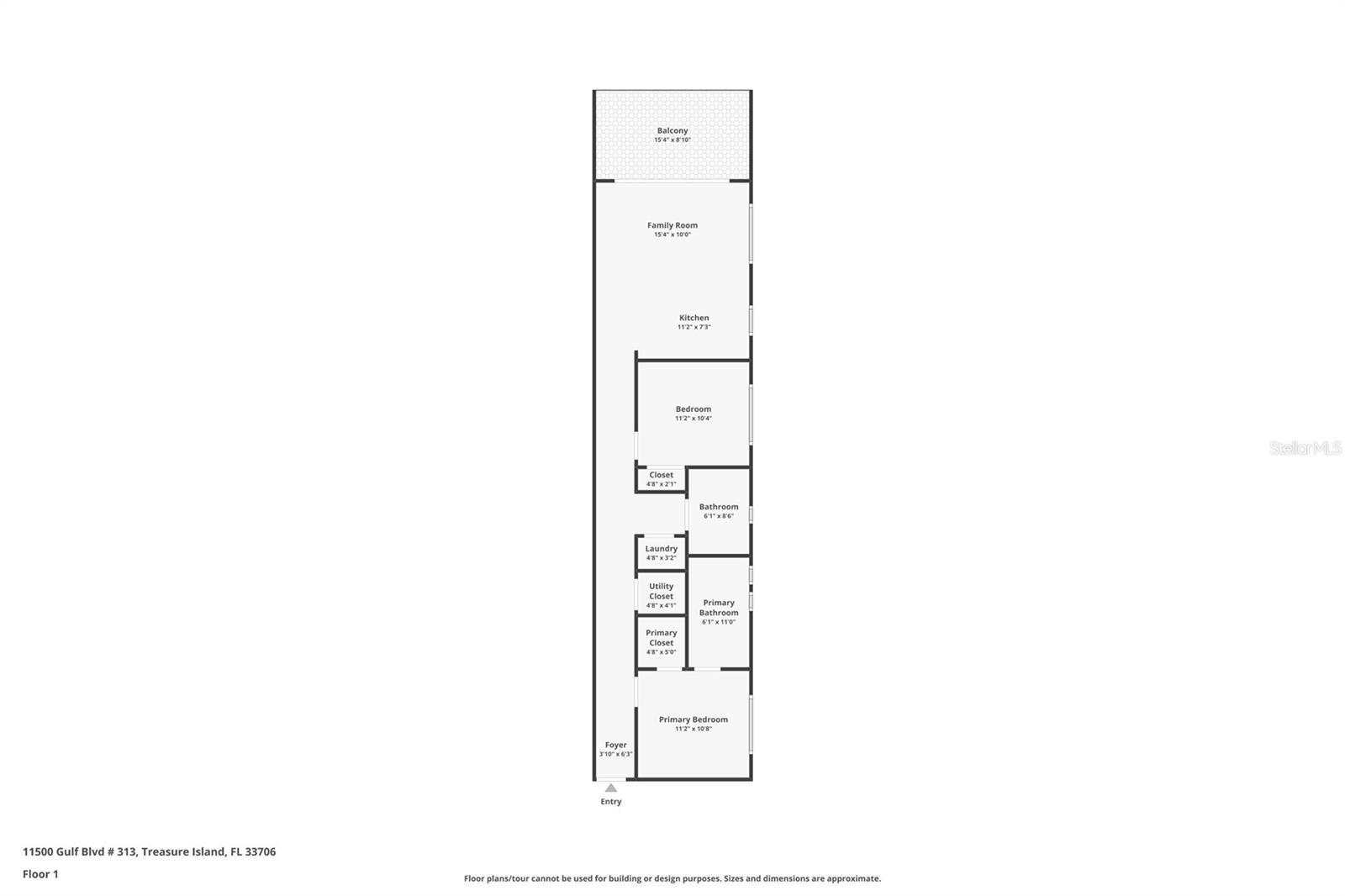
Front Building exterior Unit front door Living room/kitchen Living room/kitchen TB8449033 kitchen kitchen TB8449033 Living room/kitchen Living room living room living room living room balcony balcony Balcony View sunset balcony view primary bedroom primary bedroom primary bath primary bath Bedroom 2 Bath 2 Bath 2 In unit washer/dryer Lobby Entrance Front Desk Bar area Bar area Fitness Center Treasure Island Beach TB8449033 Pool area Pool area Pool area Pool area Private Beach area Private beach area location of #313 Floorplan of #313
Loading map ...
Loading map ...

11500 GULF BLVD #313, TREASURE ISLAND, 33706



Property highlights

  • MLS#: TB8449033
  • Year built: 2023
  • Floor: 3
  • Parking spaces: 1
  • Pool: Community pool
  • Listed: 11/18/2025
  • Taxes: $11,439.22
  • HOA fees (monthly): $792.00
  • Average Monthly Fees (not including CDD, if any): $792.00
  • Maintenance fee includes: Cable TV, Insurance, Internet, Maintenance Structure, Maintenance Grounds, Maintenance, Pool, Sewer, Trash and Water
  • Virtual Tour

Property Overview

HIGH OCCUPANCY (83% average 2025 YTD) & INCOME GENERATING NIGHTLY RENTAL- This is your chance to own a LUXURY HOTEL SUITE at Ocean Club on Treasure Island. This 2-bedroom, 2-bathroom residence with just over 1000 heated square feet is your chance to own a prime piece of paradise with superior views, privacy, and value. Positioned on the 3rd Floor, this CORNER UNIT delivers unobstructed GULF AND BEACH VIEWS. Awesome direct sightlines to Treasure Island’s expansive beach. This is a rare opportunity to own one of the CORNER UNITS with extra windows and more natural light. This is also the only unit in the entire building with shutters installed in the living room area for added privacy. Located in the heart of Treasure Island Beach Trail, Ocean Club provides direct access to biking, walking, and beach activities, all without crossing a single street. The amenities are second to none, featuring an expansive resort pool and oversized hot tub, a state-of-the-art fitness center, a private sandy beach area and volleyball court, a rooftop terrace and bar area that functions as a beachfront casual food and sports bar, ample covered and open parking with a garage spot included with purchase, a 24-hour concierge, and an onsite proven rental and housekeeping management team. This turnkey unit comes FULLY FURNISHED, including impact glass windows, a deep private terrace, premium appliances, full-size washer & dryer, kitchenware, and stylish decor- everything you need for a seamless transition into beachfront ownership. Enjoy up to 30 consecutive days of personal use as a unit owner! Unlike many beachfront rental properties, Ocean Club’s onsite rental program offers industry-leading flexibility, giving owners the best of both worlds. Lucrative rental income potential and generous personal-use allowances. Pet-friendly and rental-friendly, you can choose any rental management company, but we highly recommend the onsite team, boasting one of the lowest on-site management fees in the area at just 20%

Driving directions : US Hwy 19 S To Central Ave. N Head West On Central Over Treasure Island Causeway Bear Right To Gulf Blvd. To Ocean Club On Left

Property Features

Rooms Dimension Description
Living Room First level
Kitchen First level
Primary Bedroom First level

Interior Features

  • Kitchen/Family Room Combo
  • Open Floorplan
  • Window Treatments

Appliances

  • Dishwasher
  • Dryer
  • Electric Water Heater
  • Microwave
  • Range
  • Refrigerator
  • Washer

Heating

  • Central

Laundry features

  • Inside
  • Laundry Closet

Air Conditioning

  • Central Air

Floor Covering

  • Tile

Utilities

  • Public

Exterior features

  • Balcony
  • Lighting
  • Sliding Doors

Parking features

  • Basement

View

  • Water

Pets restrictions

  • Pet Friendly Hotel- Allowed up to 2 medium sized dogs up to 20kg. See attached Declaration for more info.
  • 2 pet(s) allowed
  • Medium (36-60 Lbs.)

Community Features

  • Buyer Approval Required

Association Amenities

  • Elevator(s)
  • Fitness Center
  • Pool
  • Spa/Hot Tub

Construction Materials

  • Block

Road Surface Type

  • Paved

Roof

  • Other

Foundation

  • Slab

Listing information courtesy of ARC REALTY GROUP

All listing information is deemed reliable but not guaranteed and should be independently verified through personal inspection by appropriate professionals. Listings displayed on this website may be subject to prior sale or removal from sale; availability of any listing should always be independently verified.
Listing information is provided for consumer personal, non-commercial use, solely to identify potential properties for potential purchase; all other use is strictly prohibited and may violate relevant federal and state law.
Listing data comes from My Florida Regional MLS.