English / Українська / Русский

Julia Vakulenko - Broker -

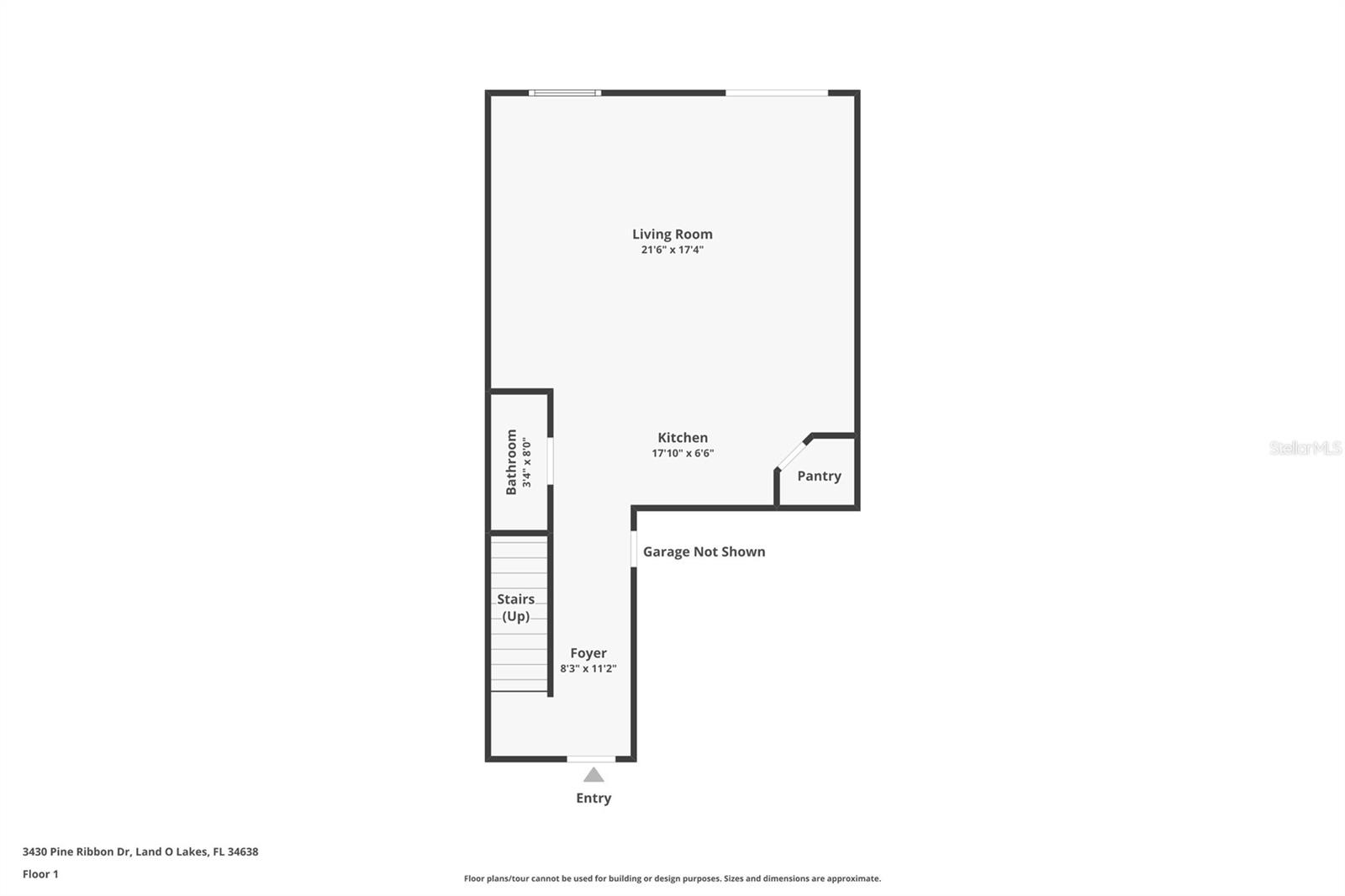
TB8449366 TB8449366 TB8449366 TB8449366 TB8449366 TB8449366 TB8449366 TB8449366 TB8449366 TB8449366 TB8449366 TB8449366 TB8449366 TB8449366 TB8449366 TB8449366 TB8449366 TB8449366 TB8449366 TB8449366 TB8449366 TB8449366 TB8449366 TB8449366 TB8449366 TB8449366 TB8449366 TB8449366 1st Floor 2nd Floor Combined
Loading map ...
Loading map ...

3430 PINE RIBBON DR, LAND O LAKES, 34638

  • $309,999
  • Price changed 01/19/2026 from $314,999, -1.59%
  • 3 Beds, 2 Baths (and 1 half-baths) , 1,642 Sq.Ft
  • County: Pasco
  • Community: Bexley


Property highlights

  • MLS#: TB8449366
  • 2,750.00 lot size Sq.Ft.
  • Year built: 2017
  • Parking spaces: 1
  • Pool: Community pool
  • Listed: 11/19/2025
  • Taxes: $5,064.41
  • Annual CDD fee (inc. in Taxes): $2,551.00
  • HOA fees (monthly): $168.00
  • Average Monthly Fees (not including CDD, if any): $168.00
  • Maintenance fee includes: Pool, Maintenance Structure, Other and Recreational Facilities
  • Building Name: 0
  • Virtual Tour

Property Overview

If you’ve been waiting for a low-maintenance home in Bexley at an approachable price point, this is one you need to see.

Located in one of Land O Lakes’ most desirable master-planned communities, this 3 bedroom, 2.5 bathroom townhome offers a layout that lives comfortably and makes everyday life easy. The main floor features an open design with a spacious living area and a modern kitchen with stainless steel appliances, ample cabinetry, a pantry, and a dining space that opens directly to the private outdoor patio — perfect for relaxing or entertaining.

All three bedrooms are located upstairs, including a generous primary suite with a large walk-in closet and private bath. The additional bedrooms offer flexibility for guests, a home office, or playroom, while the one-car garage provides convenience and extra storage.

One of the biggest advantages of this home is the Bexley lifestyle. Residents enjoy access to resort-style pools, a fitness center, miles of walking and biking trails, dog parks, playgrounds, sports fields, and the Bexley Club with a café and year-round community events. Top-rated schools, shopping, dining, and easy access to the Veterans Expressway make this location ideal for both commuters and families.

The HOA covers exterior maintenance and community amenities, making this a great option for buyers who want the benefits of homeownership without the maintenance of a single-family home.

Priced at $314,999, this home represents an excellent opportunity to own in Bexley at a price point that is becoming increasingly rare.

Whether you’re a first-time buyer, looking to downsize, or searching for a solid investment, this home checks the boxes.

Schedule your private showing today.

Driving directions : From Hwy 54, turn onto Bexley Village Drive (main Bexley entrance) Turn right on Balance Cove Drive Turn left on Pine Ribbon Drive

Property Features

Rooms Dimension Description
Primary Bedroom Second level
Primary Bathroom Second level
Bedroom 2 Second level
Bedroom 3 Second level
Dining Room First level
Kitchen First level
Living Room First level

Interior Features

  • Open Floorplan
  • Other
  • Stone Counters

Appliances

  • Dishwasher
  • Range
  • Refrigerator

Heating

  • Central

Laundry features

  • Laundry Room

Air Conditioning

  • Central Air

Floor Covering

  • Carpet
  • Tile

Utilities

  • BB/HS Internet Available
  • Electricity Available
  • Other
  • Public
  • Water Available

Exterior features

  • Other
  • Sidewalk

Pets restrictions

  • Buyer/Buyers Agent to verify Pet Restrictions

Community Features

  • Association Recreation - Owned
  • Clubhouse
  • Deed Restrictions
  • Fitness Center
  • Park
  • Playground
  • Pool
  • Sidewalks

Construction Materials

  • Block
  • Stucco

Road Surface Type

  • Paved

Roof

  • Shingle

Foundation

  • Slab

School Information


Listing information courtesy of EXP REALTY LLC

All listing information is deemed reliable but not guaranteed and should be independently verified through personal inspection by appropriate professionals. Listings displayed on this website may be subject to prior sale or removal from sale; availability of any listing should always be independently verified.
Listing information is provided for consumer personal, non-commercial use, solely to identify potential properties for potential purchase; all other use is strictly prohibited and may violate relevant federal and state law.
Listing data comes from My Florida Regional MLS.