English / Українська / Русский

Julia Vakulenko - Broker -

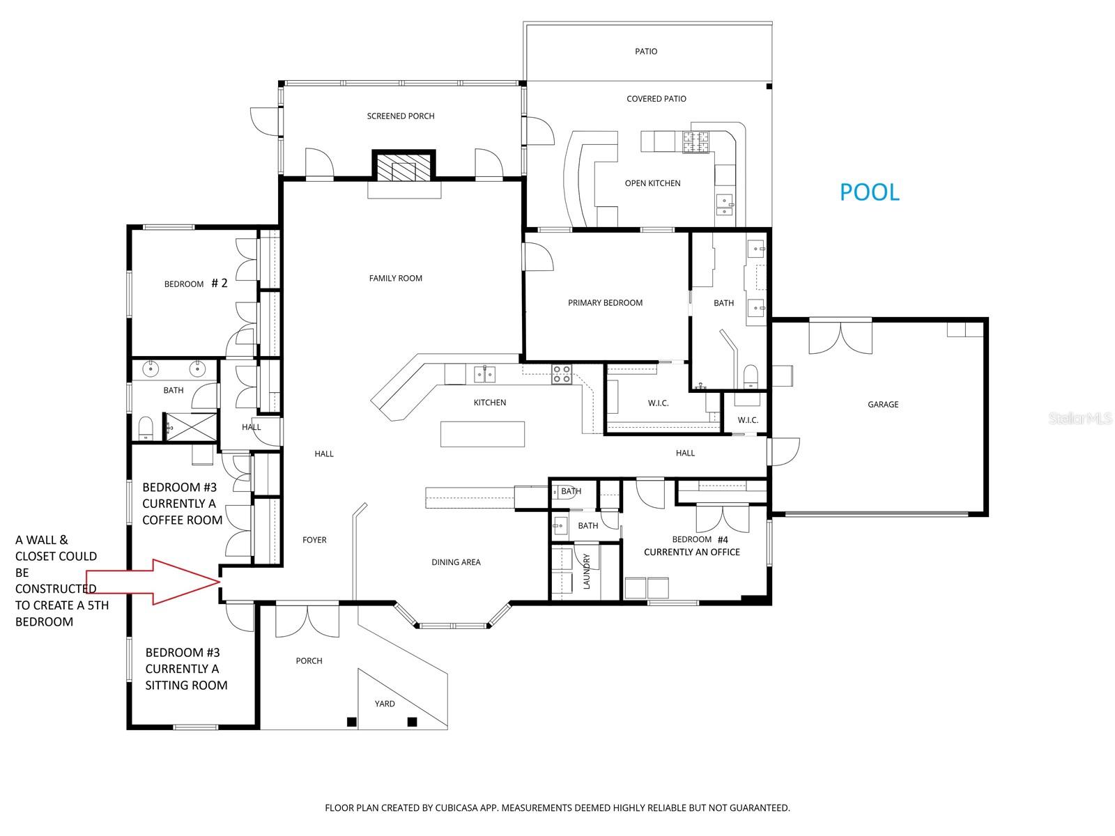
WELCOME HOME!  1101 80TH Street Ct. S. TB8457963 Paver Sidewalk and Front Porch - Double Entry Front Door NEW ROOF - OCTOBER 2025 Double Entry Front Doors TB8457963 Entryway - Oversized Bedroom 3 to the Right Luxury Vinyl Plank Flooring Throughout Entryway - Open Concept Kitchen/Living Room Recessed Lighting and Luxury Vinyl Plank Flooring Spacious Kitchen with 6 plus seating at the Breakfast Bar Kitchen Island, Granite Countertops, Serving Counter Newer GE Black Stainless Steel Appliances Hallway to Bedroom 4, Half Bath, Interior Laundry and Garage Abundance of cabinets - serving counter connects to the dining room Dining Room Pool and outdoor kitchen Close Proximity to our Beautiful Beaches Living Room View of Kitchen from Living Room Living Room with Wood Burning Fireplace Primary Suite - Left Door is En-Suite Bath - Right Door is Walk In Closet Spacious Primary Suite Privately Located Off of the Living Room Custom Walk In Closet Spacious Primary En-Suite Bath - Dual Sinks - Tile Floor Primary Walk In Shower - Venetian Bronze Fixtures Spa inspired Primary Bath Dedicated Makeup Vanity Floor Plan Showing Where a 5th Bedroom is Possible Hallway Off Living Room to Bedroom #2 and Hall Bath Bedroom #2 Lots of Closet Space and New Interior Doors Throughout the House Hall Bath - Dual Sinks - Walk In Shower Hall Bath Hall Bath - More Storage in Hall Bedroom #3 - Currently being used as a sitting room-Approx 11.5' x 15' Bedroom #3 - Entrance to the Right - A wall and closet could be added to make this a 5th Bedroom Bedroom #3 currently being used as a sitting room and a coffee room - two separate entrances.  A wall/closet could be built to make this space into two separate bedrooms. Bedroom #3 - Currently being used as a coffee Room-Approx.  11.5' x 11' Coffee Room and Sitting Room - Approximately 26' x 11.5' - In it's current use - perfect for single family, in-law or multi-generational living Bedroom #3 - Currently used as a Coffee Room - Nice Closet Space Bedroom #4 - Currently used as an office - Entrance to En-Suite Half Bath and Laundry Bedroom #4 - Currently used as an office En-Suite Half Bath and Laundry Room off of Bedroom #4 En-Suite Half Bath - the closet can be plumbed for a 3rd Shower Laundry Room - Washer & Dryer Stay Folding Counter in Laundry Room Covered and Screened Patio off the back of the house Covered and Screened Patio Entertaining is a Snap with this Outdoor Kitchen! This Outdoor Kitchen is Outstanding! Wine Cooler, Luxor Warming Tray, Lazyman Propane Grill - Storage Galore! Luxor warming tray, Lazyman Propane Grill, Bar Fridge, bar sink w/condiment trays and integrated ice storage -Perfect for relaxing with family or entertaining with friends Beautiful Sparkling Pool - The yard is fully fenced New Pool Pump and Filter Garage - Epoxy Flooring AC installed - September 2024 Whole House Water Purification System - Aerus Origins WCF400 Outdoor Lighting TB8457963 TB8457963 Outdoor Shed Fully Fenced - Paver Driveway and Pool Deck - Plenty of Greenspace TB8457963
Loading map ...
Loading map ...

1101 80TH STREET CT S, ST PETERSBURG, 33707



Property highlights

  • MLS#: TB8457963
  • 10,180.00 lot size Sq.Ft.
  • Year built: 1969
  • Parking spaces: 2
  • Pool: Private pool

Property Overview

Exceptional pride of ownership is apparent in this move-in-ready, solid block single-level pool home, ideally positioned on a quiet cul-de-sac in the highly desirable neighborhood of Yacht Club Estates. Offering 2,613 heated square feet of thoughtfully designed living space, this home features 4 bedrooms with potential for a 5th, 2.5 baths, interior laundry, and a 2-car garage - Delivering the space, functionality, and quality today’s buyers seek. The spacious open concept living and kitchen area is enhanced by a three-way split bedroom floor plan and continuous luxury vinyl plank flooring throughout. Designed for both daily living and entertaining, the bright and updated kitchen showcases an abundance of solid wood cabinetry, granite countertops, black stainless steel GE appliances, a reverse osmosis filtration system, an InsinkErator hot water dispenser, a center island, a 6 plus seat breakfast bar, and a serving counter that seamlessly connects to the formal dining room. Privately located off the living room, the primary suite offers a true retreat, complete with a custom walk-in closet and a spa-inspired en-suite bath featuring dual sinks, generous cabinet storage, a large walk-in shower, and a dedicated makeup vanity. To the right of the kitchen is a newly remodeled half bath with an option to add a shower in the attached closet, a bedroom currently utilized as an office, and a convenient laundry room. A custom glass door leads to the pristine garage, finished with epoxy flooring. On the left side of the home is an updated hall bath with dual sinks and a walk-in shower, along with two additional bedrooms. The oversized front bedroom - approximately 26’ X 11 1/2’ - is currently used as a sitting room/coffee room. A demising wall and closet could easily convert this space into a fifth bedroom. In its current design, it is perfect for single family, in-law or multi-generational living. Step outside to your private tropical oasis and enjoy Florida living year-round. A newly constructed, covered and screened patio extends directly off the back of the house. The exceptional outdoor bar and kitchen overlooks the sparkling pool with new pump and filter and is a true showpiece, offering seating for 10+ guests and featuring a Lazyman propane grill, bar refrigerator, wine cooler, Luxor warming oven, bar sink with condiment trays and integrated ice storage – perfect for entertaining on any scale. The backyard is fully fenced with reclaimed water irrigation, and there is plenty of green space for all of your outdoor activities! Meticulously maintained and free of damage/water intrusion from the 2024 hurricane season - some of the homes valuable extras include: Roof (2025), Hot Water Heater (2025), Interior Doors (2025), AC (2024), Aluminum Covered Lanai (2022), Windows & Exterior Doors (2021/2022), Plantation Shutters, 5 ½" Baseboard, Crown Molding, Whole House Aerus Origins Water Purifier/Conditioner, Paver Driveway and Pool Deck, Safe Touch Security System, Outdoor Shed, Outdoor Lighting and Natural Gas available. Yacht Club Estates offers underground utilities, various clubs and is minutes to our beautiful beaches, shopping & restaurants. Schedule your private showing today!

Driving directions : From Central Avenue, turn Left onto 79th Street S.- turn Right to stay on 79th Street S., turn Right onto 12th Avenue S., turn Right onto 80th Street Ct. S.

Property Features

Rooms Dimension Description
Kitchen 12.5x21 First level , Luxury Vinyl , Breakfast Bar , Ceiling Fan(s) , Kitchen Island , Stone Counters
Dining Room 10.5x18 First level , Luxury Vinyl
Living Room 16.5x22.5 First level , Luxury Vinyl
Primary Bedroom 12x15.5 First level , Luxury Vinyl , Ceiling Fan(s) , En Suite Bathroom
Primary Bathroom 7x14.5 First level , Tile , Double Vanity , Exhaust Fan , Makeup/Vanity Space , Shower No Tub , Stone Counters
Bedroom 2 12x12 First level , Luxury Vinyl , Ceiling Fan(s)
Bedroom 3 11.5x26 First level , Luxury Vinyl , Ceiling Fan(s)
Bedroom 4 11.5x13 First level , Luxury Vinyl
Laundry 5x7 First level , Tile
Balcony/Porch/Lanai First level
Bathroom 2 5.5x7 First level , Luxury Vinyl , Double Vanity , Shower No Tub

Interior Features

  • Ceiling Fans(s)
  • Crown Molding
  • Kitchen/Family Room Combo
  • Open Floorplan
  • Primary Bedroom Main Floor
  • Solid Wood Cabinets
  • Split Bedroom
  • Stone Counters
  • Thermostat
  • Walk-In Closet(s)
  • Window Treatments

Appliances

  • Dishwasher
  • Disposal
  • Dryer
  • Electric Water Heater
  • Kitchen Reverse Osmosis System
  • Microwave
  • Range
  • Refrigerator
  • Washer
  • Water Purifier

Heating

  • Central
  • Electric

Laundry features

  • Inside
  • Laundry Room

Air Conditioning

  • Central Air

Fireplace

  • Living Room
  • Wood Burning

Floor Covering

  • Luxury Vinyl
  • Tile

Utilities

  • BB/HS Internet Available
  • Electricity Connected
  • Natural Gas Available
  • Public
  • Sprinkler Recycled
  • Underground Utilities
  • Water Connected

Exterior features

  • Lighting
  • Outdoor Kitchen
  • Rain Gutters

Pool features

  • Deck
  • Gunite
  • In Ground
  • Lighting

Parking features

  • Driveway
  • Garage Door Opener

Patio and porch features

  • Covered
  • Front Porch
  • Patio
  • Rear Porch
  • Screened

Community Features

  • Deed Restrictions
  • Irrigation-Reclaimed Water
  • Street Lights

Security Features

  • Security System

Construction Materials

  • Block

Other Structures

  • Outdoor Kitchen
  • Shed(s)

Road Surface Type

  • Paved

Roof

  • Shingle

Foundation

  • Slab

Lot Features

  • Cul-De-Sac
  • FloodZone
  • City Limits
  • Landscaped
  • Paved

School Information


Listing information courtesy of COLDWELL BANKER REALTY

All listing information is deemed reliable but not guaranteed and should be independently verified through personal inspection by appropriate professionals. Listings displayed on this website may be subject to prior sale or removal from sale; availability of any listing should always be independently verified.
Listing information is provided for consumer personal, non-commercial use, solely to identify potential properties for potential purchase; all other use is strictly prohibited and may violate relevant federal and state law.
Listing data comes from My Florida Regional MLS.