English / Українська / Русский

Julia Vakulenko - Broker -

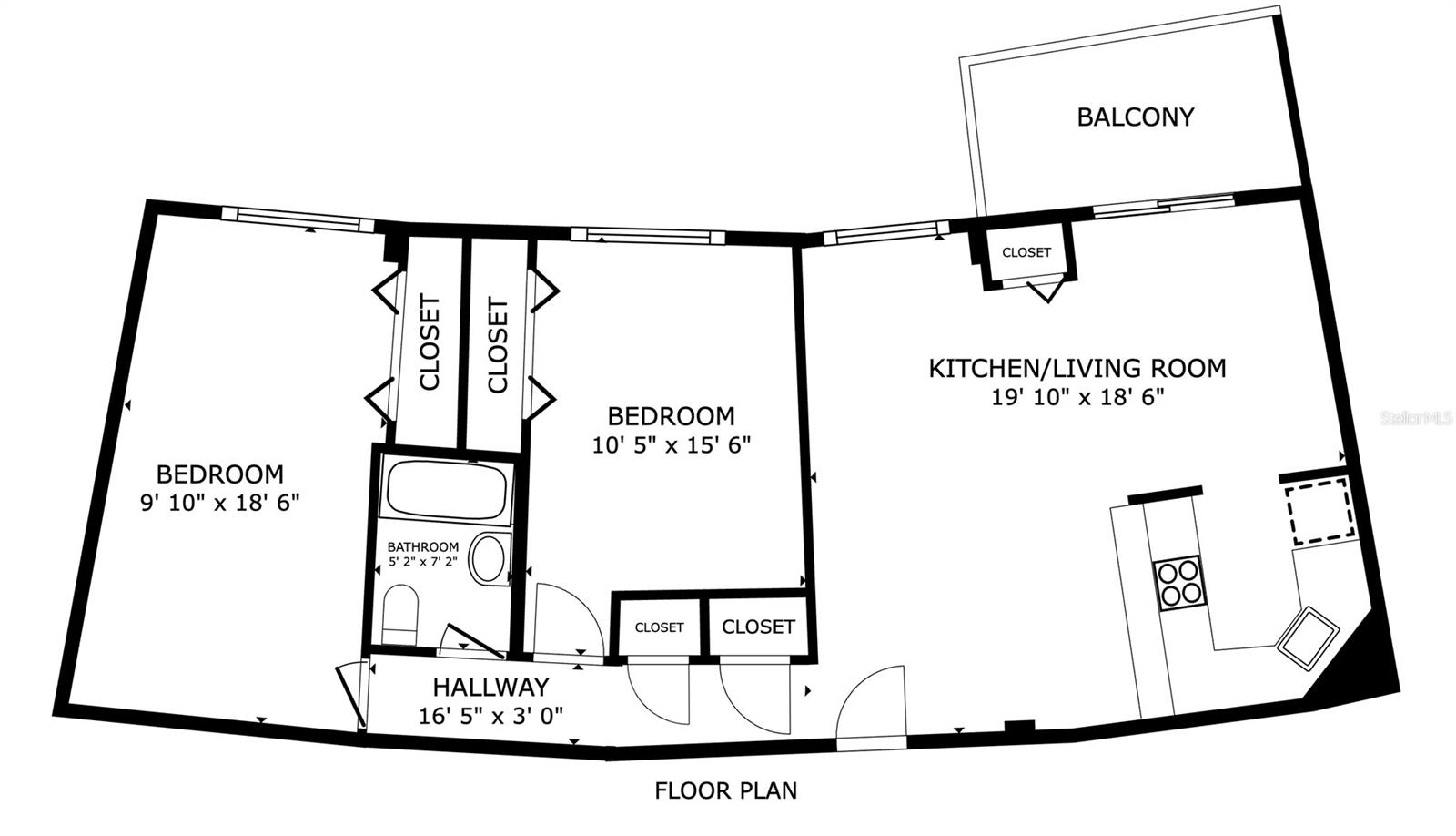
The Wave condos - Your new home Spacious living area with tons of natural light Large flexible living area Main living area Kitchen open to living area Kitchen Breakfast bar Hallway separates bedrooms from living area Bathroom Primary bedroom with lots of natural light, gleaming laminate floors, and a large closet Plenty of closet space Large primary bedroom Bright 2nd bedroom with another large closet Large closet in 2nd bedroom Balcony Enjoy your morning coffee or evening cocktail on the balcony Floorplan The Wave Uniquely shaped building Come check it out Take a dip in the pool Pool and lounge area Pool located on back side of building Lounge area just outside pool Fitness center on first floor Work out, then head straight out to the pool for a refreshing dip Laundry located on the first floor Striking lobby The Wave Welcome home
Loading map ...
Loading map ...

3315 58TH AVE S #204, ST PETERSBURG, 33712



Property highlights

  • MLS#: TB8459361
  • 727,258.00 lot size Sq.Ft.
  • Year built: 1962
  • Floor: 2
  • Pool: Community pool
  • Listed: 12/30/2025
  • Taxes: $1,959.05
  • HOA fees (monthly): $750.58
  • Average Monthly Fees (not including CDD, if any): $905.58
  • Maintenance fee includes: Cable TV, Common Area Taxes, Pool, Internet, Maintenance Structure, Maintenance Grounds, Sewer, Trash and Water
  • Building Name: THE WAVE CONDOMINIUMS
  • Virtual Tour

Property Overview

GREAT VALUE in a GREAT LOCATION. This 2 bedroom 1 bath unit in The Wave is just what you're looking for. The spacious, bright condo is a perfect starter home or investment property. Work from home with the 2nd bedroom as an office. Enjoy your coffee or cocktails on the balcony. Grab a bite at the breakfast bar then head down to the fitness center or out for a dip in the pool. All while feeling safe in the secure building. Located near I-275 not far from beaches and only 10 minutes from downtown St. Petersburg the location is ideal. You can't beat the value as this unit is already priced for a quick sale. Don't wait! Schedule your showing today to start your new year in a new home.

Driving directions : From I-275 south, take exit 17 for 54th Ave S. Use left lane to take the 54th Ave S exit. Use right lane to turn left onto 54th Ave S. Turn right onto 31st ST S. Turn right onto 58th AVE S. Turn right onto access road. Turn left into parking lot. Guest spots are at the end of the parking lot. Unit #204 is just to the left as you exit the West elevator.

Property Features

Rooms Dimension Description
Kitchen 8x9 First level , Ceramic Tile , Breakfast Bar
Living Room 23x20 First level , Laminate
Primary Bedroom 13x14 First level , Laminate
Bathroom 2 12x10 First level , Laminate

Interior Features

  • Living Room/Dining Room Combo
  • Open Floorplan
  • Primary Bedroom Main Floor
  • Thermostat
  • Window Treatments

Appliances

  • Electric Water Heater
  • Range
  • Refrigerator

Heating

  • Central
  • Electric

Laundry features

  • Common Area
  • Corridor Access
  • Inside
  • Laundry Room

Air Conditioning

  • Central Air

Floor Covering

  • Ceramic Tile
  • Laminate

Utilities

  • BB/HS Internet Available
  • Cable Connected

Exterior features

  • Balcony
  • Sliding Doors

Pets restrictions

  • PLEASE CONFIRM ALL PET RESTRICTIONS WITH THE HOA. Total pet weight not to exceed 50 lbs. total.
  • 2 pet(s) allowed
  • Small (16-35 Lbs.)

Community Features

  • Fitness Center
  • Pool
  • Sidewalks

Security Features

  • Key Card Entry
  • Smoke Detector(s)

Construction Materials

  • Concrete
  • Metal Frame
  • Other

Road Surface Type

  • Asphalt

Roof

  • Built-Up

Foundation

  • Slab

School Information


Listing information courtesy of COLDWELL BANKER REALTY

All listing information is deemed reliable but not guaranteed and should be independently verified through personal inspection by appropriate professionals. Listings displayed on this website may be subject to prior sale or removal from sale; availability of any listing should always be independently verified.
Listing information is provided for consumer personal, non-commercial use, solely to identify potential properties for potential purchase; all other use is strictly prohibited and may violate relevant federal and state law.
Listing data comes from My Florida Regional MLS.