English / Українська / Русский

Julia Vakulenko - Broker -

This is Wow. Your Private Beach Endless Beach Walks Ahead This is Wow. Entry View of Spacious Custom Layout Living room view that will decompress anyone Large Living Room Needs You Custom Kitchen w. Pass-through Upgraded Kitchen Modern, Open Kitchen Master Bedroom - but wait that's not all.... Master Bedroom w Private Patio Wake up in Master BR w Amazing View Master Bedroom largest on the beach? Master Bathroom - New Cabinets, Counter, Sink... Lights... everything! Custom Shower in Master Bathroom Guest Bedroom w a View Guest Bedroom - Spacious Guest Bathroom - upgraded Balcony view needs three photos! Balcony view needs three photos! Balcony view needs three photos! A Peaceful Morning View A Sign in the Morning Sky Sunrises - Start Your Day Right TB8471129 Moon Rise - Start Your Evening Right TB8471129 TB8471129 Moon Rises and City Lights, Priceless Condo amenities - Large Event Room w Kitchen Game Room Library, Game Room and Book Exchange w Gulf View Fitness Center w Gulf Views Fitness Center You Will Actually Use :) Media Room Poolside Deck for Entertaining Outdoor Cooking A Pool That Makes the World Jealous Largest Private Pool on North Beach Shade or Sun? Sun or Shade? Picture YOU Here. Beach View Condo building View condo building Floor dimension
Loading map ...
Loading map ...

880 MANDALAY AVE #C804, CLEARWATER BEACH, 33767



Property highlights

  • MLS#: TB8471129
  • 260,402.00 lot size Sq.Ft.
  • Year built: 1962
  • Floor: 8
  • Pool: Private pool Community pool
  • Waterfront: (600 ft)
  • Listed: 02/12/2026
  • Taxes: $5,630.04
  • Condo maintenance: $1,560.00 Monthly
  • Average Monthly Fees (not including CDD, if any): $1,560.00
  • Maintenance fee includes: Cable TV, Common Area Taxes, Pool, Escrow Reserves Fund, Insurance, Maintenance Structure, Maintenance Grounds, Maintenance, Management, Pest Control, Sewer, Trash and Water
  • Building Name: REGATTA BEACH CLUB CONDO
  • Virtual Tour

Property Overview

GULF FRONT, INTRACOASTAL LUXURY | FULLY REMODELED 2/2
Experience the ultimate North Clearwater Beach lifestyle in this stunning, fully remodeled 8th-floor residence at Regatta Beach Club. Offering a rare combination of custom architectural detail and breathtaking water vistas (including sunrises and moonrises), Unit C804 is a turnkey masterpiece designed for those who demand the best of the Florida coast. This is the largest 2 bedroom floorplan, "two condos in one".
INTERIOR EXCELLENCE & CUSTOM CRAFTSMANSHIP (More than $100k in upgrades!)
Step into a bright, open-concept floor plan where every inch has been meticulously upgraded.
• Gourmet Kitchen: Featuring custom cabinetry, premium quartz countertops, pantry and top-tier stainless steel appliances.
• Architectural Detail: One-of-a-kind custom craftsman ceilings and elegant architectural touches that set this unit apart from any other in the building.
• Turnkey Ready: This home comes fully furnished—from designer furniture to towels and linens—allowing you to start living the dream on Day 1.
• Seamless Design: Updated flooring throughout and two private balconies to enjoy panoramic Intracoastal views and spectacular nightly show of City Lights w Moon Rises.
RESORT-STYLE AMENITIES & LIFESTYLE
The Regatta Beach Club offers a private beach feel away from the crowds, while staying walking distance to the world-famous Pier 60.
• Olympic-size heated beachfront pool and private pier for fishing or sunset viewing.
• Elite Facilities: State-of-the-art fitness center, cinema/media room, arcade, library, and 24-hour gated security.
• Convenience: On-site laundry on every floor, EV charging stations, and a Jolley Trolley stop right at the entrance.
BUILT TO LAST: HURRICANE RESILIENCE
Invest with peace of mind. The Regatta Beach Club weathered past storms exceptionally well. Proactive building improvements are currently underway, including relocating power distribution to higher elevations and final recovery work to ensure long-term structural integrity and safety.

EXCLUSIVE OFFERS FROM THE WINN TEAM
At Guaranteed Home Sales, we don't just list homes; we provide certainty.
• BUY THIS HOME, WE WILL BUY YOURS!* Eliminate the "Real Estate Catch 22" of owning two homes or none at all.
• 12-MONTH SATISFACTION GUARANTEE: Love this home, or we will sell it for free!
• FIRST RESPONDER & MILITARY DISCOUNT: We are proud to provide an appreciation discount to those who serve our community.
Don’t wait—this turnkey gem is priced for an immediate sale. Whether you are looking for a primary residence, a vacation getaway, or a high-demand investment property (90-day min lease), C804 is the one you’ve been waiting for.
Contact The Winn Team at Guaranteed Home Sales today for your private showing!

Driving directions : From Clearwater, take Route 60 W (Causeway Blvd) toward Clearwater Beach. At the roundabout take the second right and head north on Mandalay Ave. Stay straight, go through another roundabout, and in approx. 1 mile Regatta Beach Club will be on your left. Enter parking through Center Entrance (not the South or North Side) - use the Call Box, press Dial - Front Desk, and they will buzz you in. Park in any open, non-covered space. Enter building in center - sign in. You will be directed to elevators. Exit Elevator on Floor 8, turn Right.

Property Features

Rooms Dimension Description
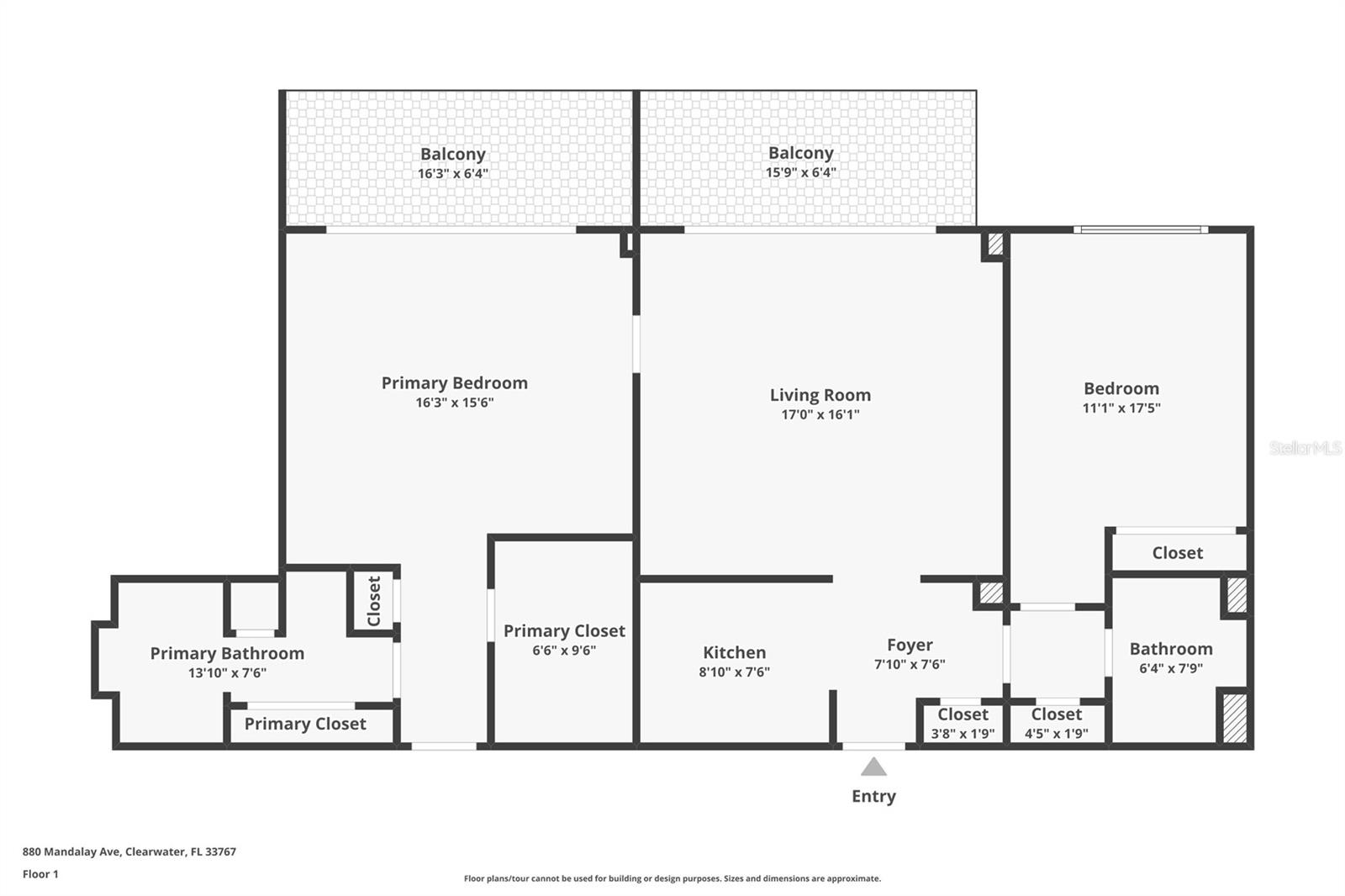
Living Room 17x16.08 First level , Ceramic Tile
Kitchen 8.8x7.5 First level , Ceramic Tile
Primary Bedroom 16.25x15.5 First level , Ceramic Tile , Shower No Tub
Primary Bathroom 13.8x7.5 First level , Ceramic Tile

Interior Features

  • Ceiling Fans(s)
  • Crown Molding
  • Kitchen/Family Room Combo
  • Living Room/Dining Room Combo
  • Open Floorplan
  • Primary Bedroom Main Floor
  • Thermostat
  • Walk-In Closet(s)
  • Window Treatments

Appliances

  • Dishwasher
  • Disposal
  • Electric Water Heater
  • Microwave
  • Range
  • Refrigerator

Heating

  • Central

Laundry features

  • Same Floor As Condo Unit

Air Conditioning

  • Central Air

Floor Covering

  • Ceramic Tile

Utilities

  • Cable Available
  • Cable Connected
  • Electricity Available
  • Electricity Connected
  • Public
  • Sewer Available
  • Sewer Connected

Exterior features

  • Outdoor Grill
  • Outdoor Kitchen
  • Outdoor Shower
  • Private Entrance
  • Private Mailbox
  • Sidewalk
  • Sliding Doors

Pool features

  • Heated
  • In Ground
  • Lap
  • Lighting
  • Outside Bath Access

Parking features

  • Electric Vehicle Charging Station(s)
  • Ground Level
  • Open

View

  • City
  • Water

Patio and porch features

  • Patio
  • Rear Porch

Pets restrictions

  • Pet restriction to be verify with the HOA
  • 2 pet(s) allowed
  • Medium (36-60 Lbs.)

Architectural Style

  • Coastal

Community Features

  • Community Mailbox
  • Fitness Center
  • Gated Community - No Guard
  • Golf Carts OK
  • Irrigation-Reclaimed Water
  • No Truck/RV/Motorcycle Parking
  • Pool
  • Sidewalks

Association Amenities

  • Clubhouse
  • Elevator(s)
  • Fitness Center
  • Gated
  • Laundry
  • Lobby Key Required
  • Maintenance
  • Pool
  • Recreation Facilities

Security Features

  • Fire Alarm
  • Fire Sprinkler System
  • Gated Community
  • Security Gate

Construction Materials

  • Concrete

Other Structures

  • Cabana
  • Gazebo
  • Outdoor Kitchen

Road Surface Type

  • Paved

Property Condition

  • Completed

Roof

  • Membrane
  • Other

Foundation

  • Block
  • Concrete Perimeter

Vegetation

  • Mature Landscaping

Lot Features

  • Flood Insurance Required
  • FloodZone
  • Sidewalk
  • Paved

School Information


Listing information courtesy of WINN TEAM YOUR HOME SOLD GUARANTEED REALTY

All listing information is deemed reliable but not guaranteed and should be independently verified through personal inspection by appropriate professionals. Listings displayed on this website may be subject to prior sale or removal from sale; availability of any listing should always be independently verified.
Listing information is provided for consumer personal, non-commercial use, solely to identify potential properties for potential purchase; all other use is strictly prohibited and may violate relevant federal and state law.
Listing data comes from My Florida Regional MLS.