English / Українська / Русский

Julia Vakulenko - Broker -

TB8474664 TB8474664 TB8474664 TB8474664 virtually staged TB8474664 virtually staged TB8474664 TB8474664 virtually staged TB8474664 virtually staged TB8474664 TB8474664 TB8474664 TB8474664 TB8474664 TB8474664 TB8474664 TB8474664 TB8474664 TB8474664 TB8474664 TB8474664 TB8474664 TB8474664 TB8474664 TB8474664 TB8474664 TB8474664 TB8474664 TB8474664 TB8474664 TB8474664 TB8474664 TB8474664 TB8474664 TB8474664 TB8474664 TB8474664
Loading map ...
Loading map ...

5440 LEEWARD LN, NEW PORT RICHEY, 34652

  • $895,000
  • 3 Beds, 3 Baths , 1,974 Sq.Ft
  • County: Pasco
  • Community: Flor-A-Mar


Property highlights

  • MLS#: TB8474664
  • 8,750.00 lot size Sq.Ft.
  • Year built: 1970
  • Parking spaces: 2
  • Pool: Private pool
  • Waterfront: (75 ft)
  • Listed: 02/12/2026
  • Taxes: $337.08
  • HOA fees (monthly): $10.42
  • Average Monthly Fees (not including CDD, if any): $10.42
  • Virtual Tour

Property Overview

One or more photo(s) has been virtually staged. Welcome home to this beautifully remodeled waterfront retreat, set on a wide, deep-water canal with quick access to open Gulf waters, perfect for large boats and sailboats alike. A striking circular paver driveway sets the tone as you arrive at this 3-bedroom, 3-bath residence with a 2-car attached garage. Inside, the open concept living, dining, and family rooms are finished with tile flooring and flow seamlessly into a stunning kitchen featuring a large quartz peninsula breakfast bar, gas stove, and stainless-steel appliances. All three bathrooms have been tastefully remodeled with glass-enclosed showers, rain showerheads, and new vanities topped with quartz counters. Wood-plank tile flooring extends through all bedrooms and baths. Impact-rated windows and doors provide peace of mind, and the entire home has been thoughtfully updated throughout. Step outside to the expansive screened lanai overlooking the heated Pebble Tec pool, waterfront, and beautifully landscaped grounds, complete with an outdoor bar—ideal for entertaining. Boaters will appreciate the dock with a 10,000-lb lift plus a floating dock. Enjoy watching dolphins and local wildlife, or head out for fishing, watersports, and island hopping just minutes from your backyard. The Gulf Harbors community offers a private beach with cabanas and grills, enhancing the true Florida lifestyle at its best! Conveniently located near major roads, shopping, dining, medical facilities, airports, golf, and renowned beaches. Schedule your private showing today and experience waterfront living at its finest.

Driving directions : From US19 N, turn onto Floramar Ter and follow about one mile to stop sign, turn right, and then second right onto Leeward Ln, home is on the right. (No sign)

Property Features

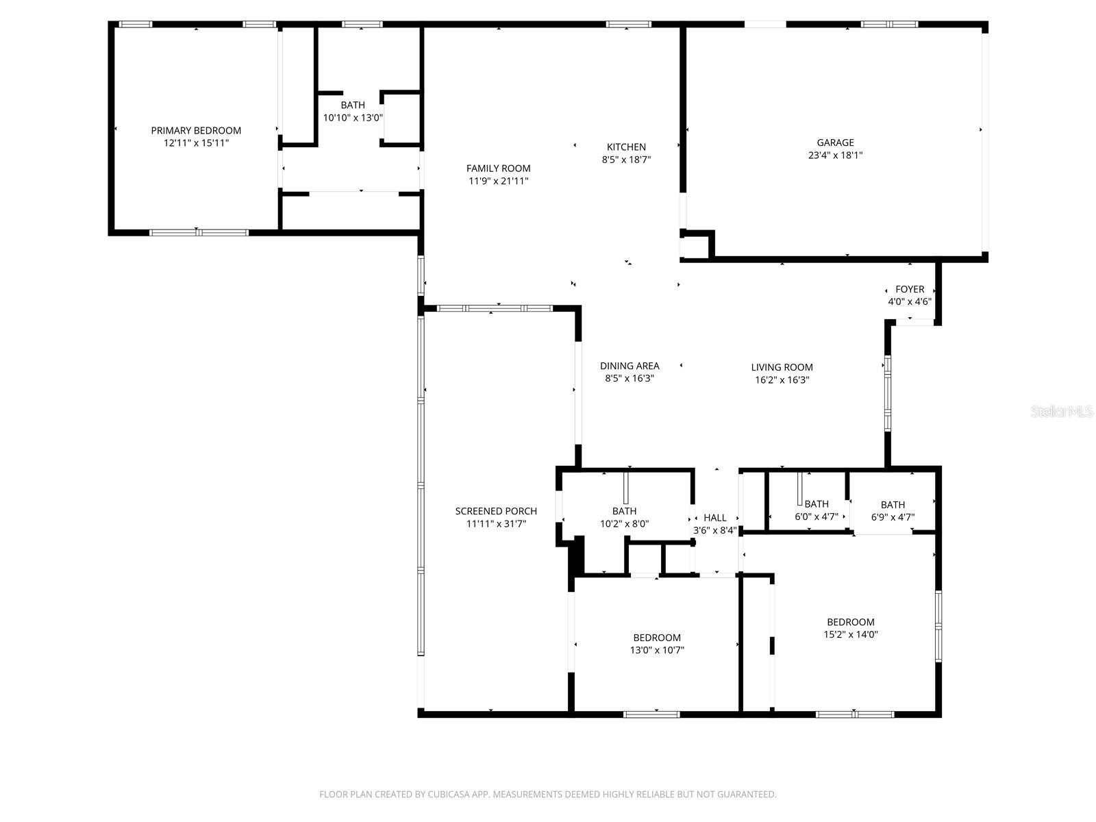
Rooms Dimension Description
Living Room 16x16 First level
Dining Room 9x16 First level
Family Room 12x22 First level
Kitchen 9x19 First level
Primary Bedroom 13x16 First level
Bedroom 2 14x15 First level
Bedroom 3 11x13 First level

Interior Features

  • Ceiling Fans(s)
  • Chair Rail
  • Crown Molding
  • Eat-in Kitchen
  • Kitchen/Family Room Combo
  • Living Room/Dining Room Combo
  • Open Floorplan
  • Split Bedroom
  • Stone Counters
  • Vaulted Ceiling(s)
  • Window Treatments

Appliances

  • Dishwasher
  • Microwave
  • Range
  • Refrigerator
  • Wine Refrigerator

Heating

  • Central
  • Electric

Laundry features

  • In Garage

Air Conditioning

  • Central Air

Floor Covering

  • Ceramic Tile

Utilities

  • Electricity Connected
  • Propane
  • Public
  • Sewer Connected

Exterior features

  • Other

Pool features

  • Heated
  • In Ground
  • Lighting

View

  • Water

Architectural Style

  • Ranch

Community Features

  • Clubhouse
  • Deed Restrictions
  • Golf Carts OK
  • Street Lights

Association Amenities

  • Clubhouse

Construction Materials

  • Block
  • Stucco

Water access details

  • Canal - Saltwater
  • Gulf/Ocean
  • Lift
  • Sailboat Water
  • Seawall - Concrete

Road Surface Type

  • Paved

Roof

  • Tile

Foundation

  • Slab

Listing information courtesy of DALTON WADE INC

All listing information is deemed reliable but not guaranteed and should be independently verified through personal inspection by appropriate professionals. Listings displayed on this website may be subject to prior sale or removal from sale; availability of any listing should always be independently verified.
Listing information is provided for consumer personal, non-commercial use, solely to identify potential properties for potential purchase; all other use is strictly prohibited and may violate relevant federal and state law.
Listing data comes from My Florida Regional MLS.