English / Українська / Русский

Julia Vakulenko - Broker -

Welcome to your waterfront home on Island Estates! This 2 story home awaits its new owners, with manicured lawn and lovely landscaping Entering the backyard,you have an extra large pavered patio and pool for daily enjoyment, right on the water! As you enter the living room and raised dining area, which are large and welcoming. This bonus room space could be used as a media room, office or more. The kitchen is large and open,  with a view to the water, stainless steel appliances, lots of storage and a built in desk area. Aerial view of the water way The first floor bath is large and has a tub/shower combo. Den/Study is off the kitchen and leads to the garage Primary bedroom with 2 large built in closets and En-Suite bath. Primary bath Primary bath Bedroom with sliders out to private balcony Bedroom 3 with sliders out to private balcony 2nd Floor Balcony overlooking the waterway Bedroom 4 Bathroom 2 with shower Shower Bath2 Laundry room with built in cabinets for extra storage, along with a utility sink, inside the home Aerial view of the community Front Entry with double doors. Kitchen Pantry Covered patio area near the pool TB8487226 TB8487226 TB8487226 TB8487226 TB8487226 TB8487226 TB8487226 TB8487226 TB8487226 TB8487226 TB8487226 TB8487226 TB8487226 TB8487226 TB8487226 TB8487226 TB8487226 TB8487226 TB8487226 TB8487226 TB8487226 TB8487226 TB8487226 TB8487226 2nd Floor Balcony Water view 2nd Floor Balcony Garage 1/2 bath Dock area TB8487226 TB8487226 TB8487226 TB8487226 TB8487226 TB8487226 TB8487226 TB8487226 TB8487226 TB8487226 TB8487226 TB8487226 TB8487226 TB8487226 TB8487226 TB8487226 TB8487226 TB8487226 TB8487226 TB8487226 TB8487226 TB8487226 TB8487226 TB8487226 TB8487226 TB8487226 TB8487226 TB8487226 TB8487226 TB8487226 TB8487226 TB8487226
Loading map ...
Loading map ...

350 HARBOR PSGE, CLEARWATER BEACH, 33767



Property highlights

  • MLS#: TB8487226
  • 11,735.00 lot size Sq.Ft.
  • Year built: 1971
  • Parking spaces: 2
  • Pool: Private pool
  • Waterfront: (202 ft)
  • Listed: 04/03/2026
  • Taxes: $8,145.00

Property Overview

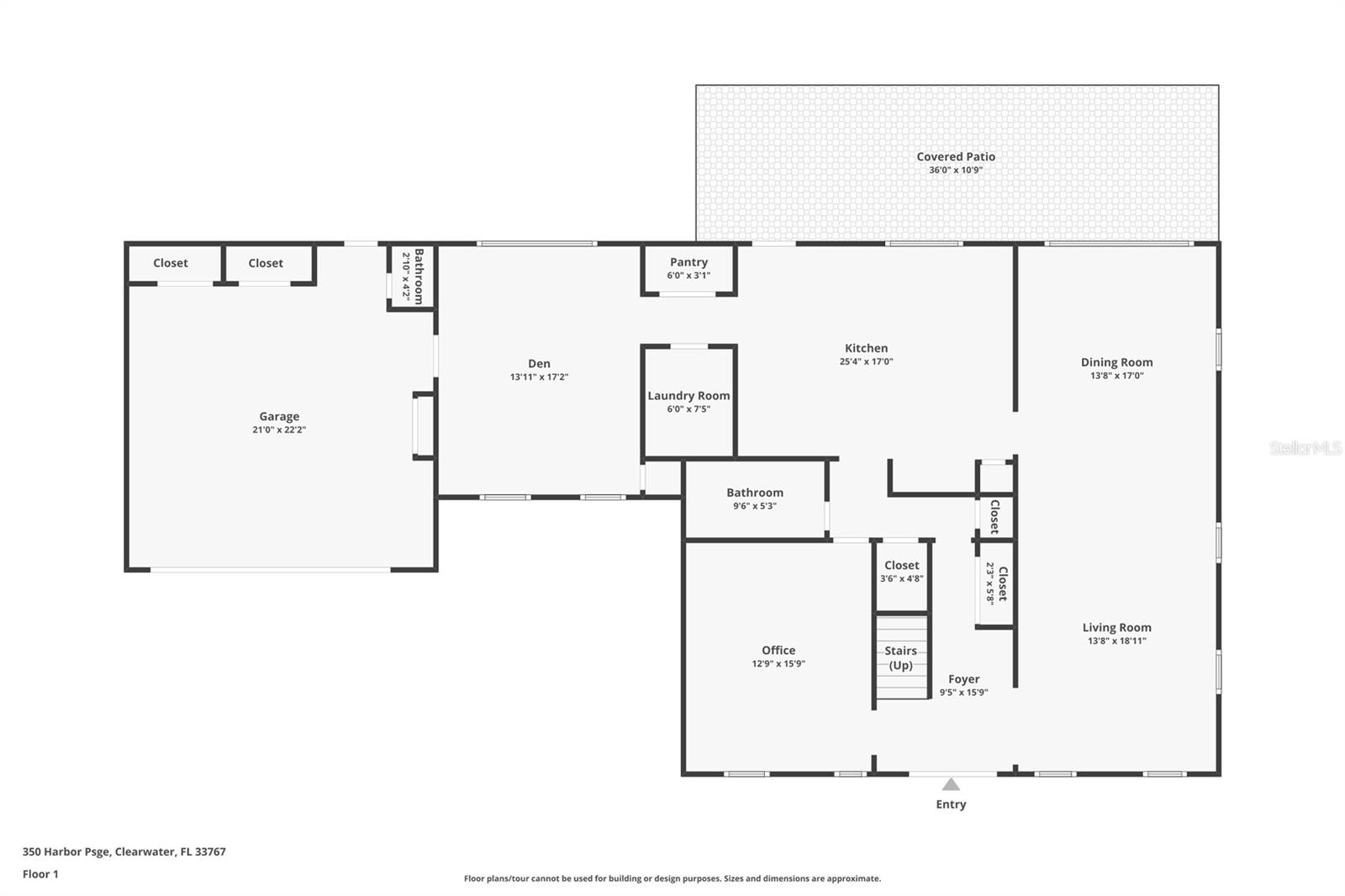
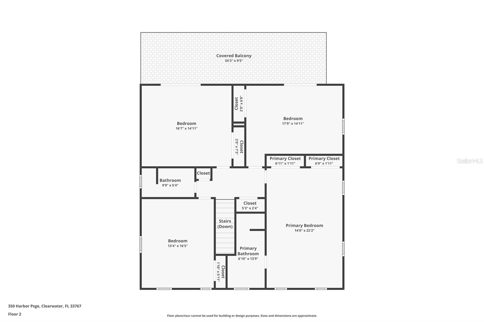
Experience true Florida waterfront living in this elevated lot which had NO FLOODING in last major storms. This beautiful property is a spacious 3,366 sq ft residence featuring 4 bedrooms, 3.5 baths, and a private pool overlooking the water. Light-filled interiors offer generous living and entertaining spaces, including a large kitchen with direct access to the pool deck for seamless indoor-outdoor living. The adjoining dining and living areas are complemented by a versatile bonus space ideal for a home office or additional family room, along with a secondary flex room near the garage. It is a blank canvas ready for you to make your own. The primary suite provides a private retreat with en-suite bath, while upstairs, two guest bedrooms open to a shared balcony—perfect for enjoying coastal breezes and water views. Outdoors, enjoy a private dock with davit lift option, offering easy access to boating, fishing, and sunset cruises. The expansive patio and pool area are ideal for entertaining. An oversized 2-car garage includes a convenient half bath serving the pool area. A rare opportunity to own a spacious waterfront home in sought-after Island Estates—close to Clearwater Beach, dining, and shopping.

Driving directions : Memorial Causeway to Island Way, follow Island way, Turn right onto Harbor passage

Property Features

Rooms Dimension Description
Kitchen 15x19 First level , Tile , Pantry
Dining Room 17x14 First level , Wood
Living Room 17x20 First level , Wood
Primary Bedroom 21.9x13 Second level , Carpet , Makeup/Vanity Space
Bedroom 2 16x13 Second level , Tile
Bathroom 3 16x14 Second level , Carpet
Bedroom 4 17x14 Second level , Carpet
Bathroom 1 10x5 First level , Tile , Tub With Shower
Den 17x14 First level , Wood
Office 16x13 First level , Wood

Interior Features

  • Ceiling Fans(s)
  • Window Treatments

Appliances

  • Disposal
  • Microwave
  • Range
  • Refrigerator

Heating

  • Central
  • Electric

Laundry features

  • Inside

Air Conditioning

  • Central Air

Floor Covering

  • Carpet
  • Ceramic Tile
  • Wood

Utilities

  • Cable Available
  • Electricity Connected
  • Public
  • Sewer Connected
  • Sprinkler Recycled
  • Water Connected

Exterior features

  • Private Mailbox
  • Private Yard
  • Sidewalk

Pool features

  • Gunite
  • Heated
  • In Ground
  • Pool Sweep

View

  • Water

Patio and porch features

  • Deck
  • Patio

Pets restrictions

  • Check with City of Clearwater for any restrictions
  • 10+ pet(s) allowed
  • Extra Large (101+ Lbs.)

Architectural Style

  • Colonial

Community Features

  • Deed Restrictions
  • Irrigation-Reclaimed Water
  • Playground
  • Sidewalks
  • Street Lights

Construction Materials

  • Concrete
  • Stone

Water access details

  • Canal - Saltwater
  • Intracoastal Waterway
  • Lift
  • Seawall - Concrete

Road Surface Type

  • Asphalt
  • Paved

Property Condition

  • Completed

Roof

  • Tile

Foundation

  • Slab

Vegetation

  • Mature Landscaping

Lot Features

  • Flood Insurance Required
  • FloodZone
  • City Limits
  • Landscaped
  • Near Public Transit
  • Sidewalk
  • Paved

School Information


Listing information courtesy of COLDWELL BANKER REALTY

All listing information is deemed reliable but not guaranteed and should be independently verified through personal inspection by appropriate professionals. Listings displayed on this website may be subject to prior sale or removal from sale; availability of any listing should always be independently verified.
Listing information is provided for consumer personal, non-commercial use, solely to identify potential properties for potential purchase; all other use is strictly prohibited and may violate relevant federal and state law.
Listing data comes from My Florida Regional MLS.