English / Українська / Русский

Julia Vakulenko - Broker -

back yard view of lake TB8490671 rear view of house showing screen porch TB8490671 TB8490671 TB8490671 guest bath TB8490671 TB8490671 TB8490671 TB8490671
Loading map ...
Loading map ...

1405 JACOBSON CIR, SUN CITY CENTER, 33573



Property highlights

  • MLS#: TB8490671
  • 10,260.00 lot size Sq.Ft.
  • Year built: 1970
  • Parking spaces: 2
  • Pool: Community pool
  • Waterfront: (71 ft)
  • Listed: 03/25/2026
  • Taxes: $1,818.03
  • HOA fees (monthly): $28.83
  • Average Monthly Fees (not including CDD, if any): $63.92
  • Virtual Tour

Property Overview

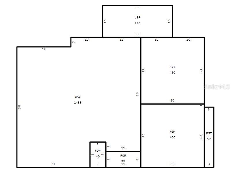
Middle Lake Waterfront. Yes, we found a nicely maintained 3-bedroom home on an approximately 35-acre lake with two islands named Duck and Egret Island. Both islands have birds that roost there year-round. So, if you want a pretty lake, a place to moor your pontoon boat maybe do a bit of fishing then call today for an appointment to see this well priced gem. The kitchen has a closet pantry, ample cabinets and counter tops, plus a nice window over the sink. There is also a 420 sq ft workshop room that is not included in the livable square footage that would be great for a workshop, hobby room or whatever you imagination desires. This home includes a roomy Florida room and a screened enclosed porch perfect to quiet evenings by the lake. Don't delay call now! This home is sold as is with no warranties expressed or implied. Buyer to satisfy their selves as to square footage and room measurements. Information contained herein subject to change without notice.

Driving directions : I-75 south to Exit 240 A E. College Ave. Follow 674 E into Sun City Center turn N on W. Del Webb and then turn right on Danbury to Jacobson Cir.

Property Features

Rooms Dimension Description
Primary Bedroom 10x15 First level , Carpet , En Suite Bathroom
Living Room First level , Carpet , Ceiling Fan(s)
Kitchen First level , Ceramic Tile , Desk Built-In

Interior Features

  • Ceiling Fans(s)
  • Living Room/Dining Room Combo
  • Open Floorplan

Appliances

  • Dishwasher
  • Range
  • Refrigerator

Heating

  • Central

Laundry features

  • Laundry Room

Air Conditioning

  • Central Air

Floor Covering

  • Carpet
  • Ceramic Tile

Utilities

  • Public

Exterior features

  • Sidewalk
  • Sliding Doors

View

  • Water

Patio and porch features

  • Screened

Architectural Style

  • Contemporary

Community Features

  • Clubhouse
  • Deed Restrictions
  • Dog Park
  • Fitness Center
  • Golf Carts OK
  • Handicap Modified
  • Pool
  • Sidewalks
  • Wheelchair Access

Association Amenities

  • Clubhouse
  • Pickleball Court(s)
  • Pool

Construction Materials

  • Block

Water access details

  • Lake
  • Minimum Wake Zone

Road Surface Type

  • Asphalt

Roof

  • Shingle

Foundation

  • Slab

Vegetation

  • Mature Landscaping

Lot Features

  • Cul-De-Sac
  • In County
  • Sidewalk
  • Paved
  • Unincorporated

Listing information courtesy of BAYSIDE REALTY GROUP INC

All listing information is deemed reliable but not guaranteed and should be independently verified through personal inspection by appropriate professionals. Listings displayed on this website may be subject to prior sale or removal from sale; availability of any listing should always be independently verified.
Listing information is provided for consumer personal, non-commercial use, solely to identify potential properties for potential purchase; all other use is strictly prohibited and may violate relevant federal and state law.
Listing data comes from My Florida Regional MLS.