English / Українська / Русский

Julia Vakulenko - Broker -

TB8496850 Front Exterior Front Exterior Front Exterior FRont entrance Stairs to second floor Kitchen View Dining Room Bedroom TB8496850 Back yard View TB8496850 TB8496850 TB8496850 TB8496850 TB8496850 TB8496850 TB8496850 TB8496850 TB8496850 TB8496850 TB8496850
Loading map ...
Loading map ...

485 11TH AVE N, ST PETERSBURG, 33701



Property highlights

  • MLS#: TB8496850
  • 6,456.00 lot size Sq.Ft.
  • Year built: 2026
  • Parking spaces: 2

Property Overview

Under Construction. Luxury new construction by Mobley Homes Custom LLC one of Tampa Bay’s premier builders, ideally located near Crescent Lake Park and Historic Old Northeast with NO flood insurance required. Built with hurricane-rated half concrete block construction on the first floor, this home offers durability, energy efficiency, and long-term value.

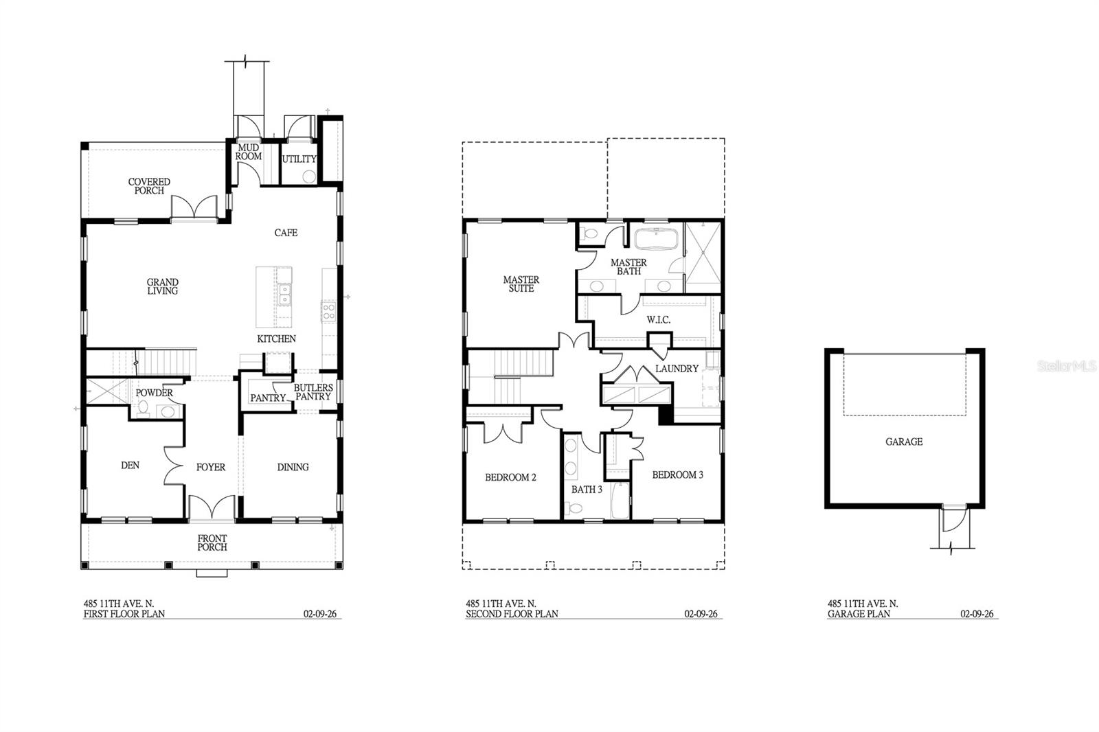
This 4-bedroom, 3.5-bath home features an open-concept layout with high ceilings and abundant natural light throughout. The gourmet kitchen includes designer cabinetry, premium countertops, a large center island, and high-end stainless steel appliances. The primary suite offers a spacious spa-inspired bath designed for comfort and relaxation.
Situated on a quiet residential street just minutes from Downtown St. Petersburg, Central Avenue dining and entertainment, and Crescent Lake Park, the location also offers convenient access to I-275, St. Pete Beach, and Tampa International Airport.
The backyard features alley access, a 2-car garage, and room for a pool or additional outdoor living space.
Mobley Homes Custom LLC builds and owns all of its homes — with no third-party investors — helping ensure a smooth building process and direct builder support after closing.

Driving directions : From I-275, take Exit 23B for 5th Ave N and head east. Turn left on 9th St N, then right on 11th Ave N. Continue east—485 11th Ave N will be on your left in the Historic Uptown area, just minutes from Crescent Lake and Downtown St. Petersburg.

Property Features

Rooms Dimension Description
Kitchen 16x13 First level , Engineered Hardwood
Living Room 20x17 First level , Engineered Hardwood
Dining Room 13x12 First level
Primary Bedroom 16x15 Second level
Primary Bathroom 13x10 Second level
Bedroom 2 12x11 Second level
Bedroom 3 12x11 Second level

Interior Features

  • Ceiling Fans(s)
  • High Ceilings
  • Kitchen/Family Room Combo

Appliances

  • Cooktop
  • Dishwasher
  • Dryer
  • Freezer
  • Gas Water Heater
  • Ice Maker
  • Microwave
  • Refrigerator
  • Tankless Water Heater

Heating

  • Central
  • Heat Pump

Laundry features

  • Laundry Room

Air Conditioning

  • Central Air

Floor Covering

  • Carpet
  • Hardwood

Utilities

  • Cable Connected
  • Electricity Connected
  • Sewer Connected
  • Water Connected

Exterior features

  • Private Mailbox
  • Sidewalk

Parking features

  • Alley Access
  • Off Street

Patio and porch features

  • Porch
  • Rear Porch

Architectural Style

  • Craftsman

Construction Materials

  • Block
  • HardiPlank Type
  • Stucco
  • Frame

Road Surface Type

  • Asphalt
  • Paved

Property Condition

  • Under Construction

Roof

  • Shingle

Foundation

  • Block
  • Concrete Perimeter
  • Stem Wall

Listing information courtesy of COMPASS FLORIDA LLC

All listing information is deemed reliable but not guaranteed and should be independently verified through personal inspection by appropriate professionals. Listings displayed on this website may be subject to prior sale or removal from sale; availability of any listing should always be independently verified.
Listing information is provided for consumer personal, non-commercial use, solely to identify potential properties for potential purchase; all other use is strictly prohibited and may violate relevant federal and state law.
Listing data comes from My Florida Regional MLS.