English / Українська / Русский

Julia Vakulenko - Broker -

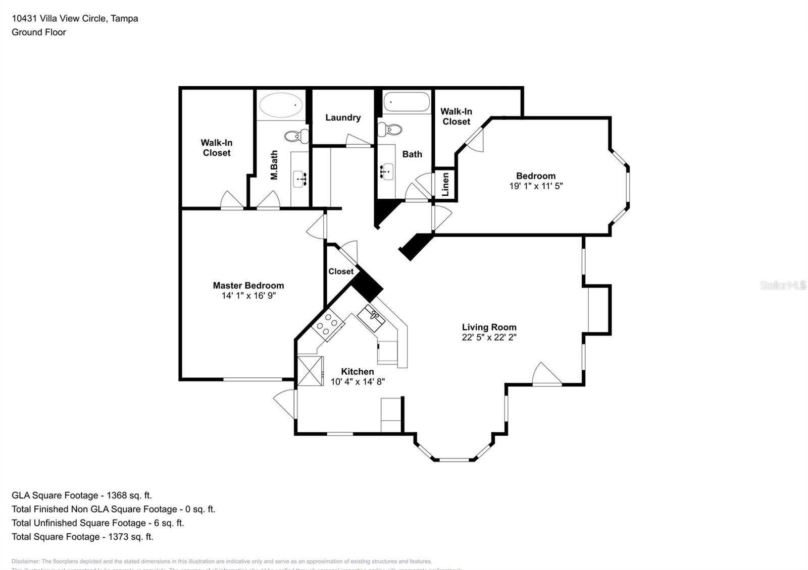
TB8497815 Living living Dining TB8497815 Kitchen Primary Bedroom Primary Bedroom Primary bathroom Laundry Room Bedroom 2 Bathroom 2 Primary Closet Water view Floor Plan Pool and Clubhouse Pool Gated Community
Loading map ...
Loading map ...

10431 VILLA VIEW CIR #10431, TAMPA, 33647



Property highlights

  • MLS#: TB8497815
  • 2.00 lot size Sq.Ft.
  • Year built: 2001
  • Floor: 1
  • Pool: Community pool
  • Listed: 04/16/2026
  • Taxes: $2,830.00
  • HOA fees (monthly): $721.72
  • Average Monthly Fees (not including CDD, if any): $721.72
  • Maintenance fee includes: Cable TV, Common Area Taxes, Pool, Escrow Reserves Fund, Internet, Maintenance Structure, Maintenance Grounds, Management, Recreational Facilities and Trash
  • Building Name: 20
  • Virtual Tour

Property Overview

Ground floor, serene waterfront 2-bedroom, 2-bathroom condo featuring an open floor plan in the gated community of The Villas. This immaculate corner unit features luxury vinyl flooring (no carpet!), granite countertops, and a large primary suite with a walk-in closet and garden tub. Residents enjoy community amenities including a gated entrance, pool, and fitness center. HOA includes cable TV, high speed internet, exterior maintenance, grounds care, and trash. Ideally located near I-75, Wiregrass Mall, and Tampa Premium Outlets and Just 15 minutes from USF, top-rated schools, and premier shopping.

Driving directions : From 75 - Take Bruce B Downs exit and go North until Cross Creek Blvd. Go east On Cross Creek Blvd to Villa Creek Dr and turn into the Villas community and drive to Building 20.

Property Features

Rooms Dimension Description
Living Room 22.5x22.2 First level , Luxury Vinyl , Ceiling Fan(s)
Kitchen 14.8x10.4 First level , Luxury Vinyl , Granite Counters
Primary Bedroom 16.9x14.1 First level , Luxury Vinyl , Ceiling Fan(s) , En Suite Bathroom , Tub With Shower
Bedroom 2 19.1x11.5 First level , Luxury Vinyl , Ceiling Fan(s) , Tub With Shower

Interior Features

  • Ceiling Fans(s)
  • High Ceilings
  • Primary Bedroom Main Floor
  • Solid Wood Cabinets
  • Stone Counters
  • Thermostat
  • Walk-In Closet(s)

Appliances

  • Dishwasher
  • Disposal
  • Dryer
  • Electric Water Heater
  • Microwave
  • Range
  • Refrigerator
  • Washer

Heating

  • Central

Laundry features

  • Laundry Room

Air Conditioning

  • Central Air

Floor Covering

  • Luxury Vinyl

Utilities

  • BB/HS Internet Available
  • Cable Connected
  • Electricity Connected
  • Public
  • Sewer Connected
  • Water Connected

Exterior features

  • Sidewalk
  • Storage

Parking features

  • Open

View

  • Water

Patio and porch features

  • Covered

Pets restrictions

  • See Rules and Regulations
  • 2 pet(s) allowed
  • Small (16-35 Lbs.)

Community Features

  • Clubhouse
  • Fitness Center
  • Gated Community - No Guard
  • Pool
  • Sidewalks
  • Street Lights

Association Amenities

  • Cable TV
  • Clubhouse
  • Fitness Center
  • Gated
  • Pool
  • Recreation Facilities

Security Features

  • Gated Community
  • Smoke Detector(s)

Construction Materials

  • Stucco
  • Frame

Road Surface Type

  • Asphalt

Roof

  • Tile

Foundation

  • Slab

School Information


Listing information courtesy of PREMIER ATLAS REALTY CORP

All listing information is deemed reliable but not guaranteed and should be independently verified through personal inspection by appropriate professionals. Listings displayed on this website may be subject to prior sale or removal from sale; availability of any listing should always be independently verified.
Listing information is provided for consumer personal, non-commercial use, solely to identify potential properties for potential purchase; all other use is strictly prohibited and may violate relevant federal and state law.
Listing data comes from My Florida Regional MLS.