English / Українська / Русский

Julia Vakulenko - Broker -

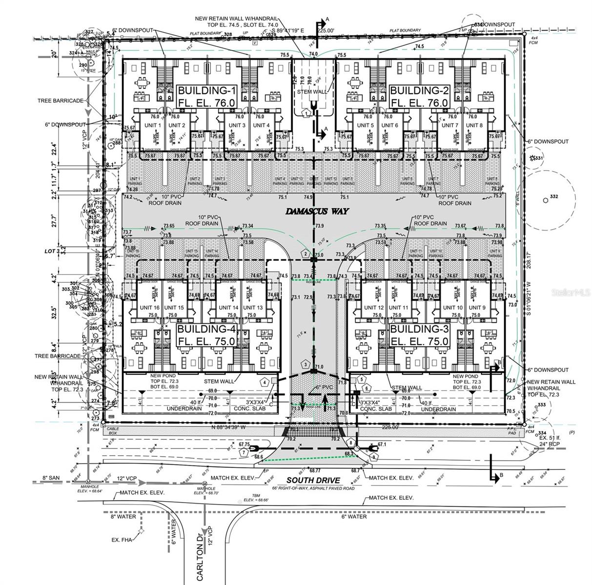
concept picture concept picture concept picture approved drawings approved drawings approved drawings concept picture concept picture concept picture concept picture concept picture concept picture Current home Current home current home carport W7883268 current home on property current home
Loading map ...
Loading map ...

2634 SOUTH DR, CLEARWATER, 33759

  • $1,595,000
  • 2 Beds, 1 Baths (and 1 half-baths) , 1,000 Sq.Ft
  • County: Pinellas
  • Subdivision: EHLE SUB


Property highlights

  • MLS#: W7883268
  • 46,409.00 lot size Sq.Ft.
  • Year built: 1959
  • Parking spaces: 3
  • Carport spaces: 3

Property Overview

Rare Clearwater build-to-rent / development opportunity with approved developmental order and plans available for a 16-townhome project (drawings and plan set available for buyer review). The existing property includes a home and a shop—however, the highest and best use is the land and future buildout for long-term rentals or resale. Prime central Clearwater location with quick access to US-19 and major commuter corridors. Convenient for tenants and investors alike: approximately 10 miles to St. Pete–Clearwater International Airport (PIE) and about 18–19 miles to Tampa International Airport (TPA) , plus an easy drive to Clearwater’s world-famous Gulf beaches, shopping, dining, and employment hubs. Ideal for investors seeking a shovel-ready (plan-set in hand) townhome rental community in one of Tampa Bay’s most in-demand submarkets. Buyer to verify zoning, density, approvals/vesting status, impact fees, utilities, and all development requirements with the City/County. All information regarding zoning, approvals, density, and development potential is believed to be accurate but is not guaranteed. Buyer is responsible for verifying all details, approvals, and requirements with the appropriate governing authorities and completing their own due diligence. Images are conceptual and/or AI-generated renderings intended to illustrate potential buildout and are not photographs of existing improvements on the property.

Driving directions : US 19 to Sunset Point Rd go east on Sunset point Rd and then turn right on South Dr follow along to property.

Property Features

Rooms Dimension Description
Living Room First level
Bedroom 1 First level
Primary Bedroom First level
Kitchen First level

Interior Features

  • Ceiling Fans(s)

Appliances

  • Range
  • Refrigerator

Heating

  • Electric

Laundry features

  • None

Air Conditioning

  • Central Air

Floor Covering

  • Carpet

Utilities

  • Public

Exterior features

  • None

Construction Materials

  • Block

Other Structures

  • Workshop

Road Surface Type

  • Paved

Roof

  • Shingle

Foundation

  • Slab

Lot Features

  • Paved

Listing information courtesy of DALTON WADE INC

All listing information is deemed reliable but not guaranteed and should be independently verified through personal inspection by appropriate professionals. Listings displayed on this website may be subject to prior sale or removal from sale; availability of any listing should always be independently verified.
Listing information is provided for consumer personal, non-commercial use, solely to identify potential properties for potential purchase; all other use is strictly prohibited and may violate relevant federal and state law.
Listing data comes from My Florida Regional MLS.